AdelaideBBS.com_阿德莱德中文网_南澳华人论坛_阿德莱德租房_工作_交友_同城 AdelaideBBS.com中文网

标题: Off Market Sale 海 [打印本页]

作者: 果子100    时间: 20-5-2024 16:09
标题: Off Market Sale 海
                      Off Market Sale
海滨绝佳机会,全尺寸地块,投资或自住!
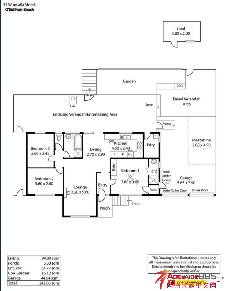
33 Woocalla Street, O'sullivan Beach, SA 5166

无论您是在寻找投资物业还是自己居住的好房子,这处房产都能满足您的所有需求!这套位于O'Sullivan Beach的3居室住宅潜力巨大,适合各类买家。

这处房产的出售信息目前还没有上市,这是一个绝佳的机会,可以在这个备受追捧的海滨郊区,以极其优惠的价格,获取一套3卧室的房屋。这处房产距离海滨和高级船只下水设施仅几分钟的路程,几分钟即可到达公交车站和当地商店,Noarlunga中心和主要购物区也都在近距离范围内。位于约733平方米的地块上,这个三卧室的家庭住宅有很多优点,并有可能进行分割开发(需经相关部门批准)。

房屋特点包括三个宽敞的卧室,主卧配有内置衣柜、吊扇和套间浴室,明亮的客厅区域配有分体式空调,时尚的厨房和用餐区配有充足的橱柜空间和优质电器,包括燃气灶和洗碗机,主浴室设有全尺寸浴缸和淋浴,大型封闭式全天候娱乐区配有燃气加热器——非常适合全年娱乐使用,宽敞的后草坪为孩子和宠物提供了充足的玩耍空间,双车棚配有卷帘门,还有一个单独的棚屋,适合作为储藏室。

一个巨大的封闭娱乐区配有燃烧加热器和内置烧烤设施,旁边是一个凉棚区,完美地完善了这个整洁的家。

价格合理!抓紧时间抢购这个难得的机会!

出售区间价:$600,000-$650,000

目前该房产已出租给长期租户,租期至2024年8月初。欲了解更多详情并获取最新的租金评估,请联系Semi Huang,电话:0413 246 253,或发送电子邮件至[email protected].

BE900794-7EA3-462F-BBDD-DFA66E1CC955.jpeg (54.76 KB, 下载次数: 551)

BE900794-7EA3-462F-BBDD-DFA66E1CC955.jpeg

E1374003-B913-4E29-BC64-B4DB440D0603.jpeg (122.3 KB, 下载次数: 591)

E1374003-B913-4E29-BC64-B4DB440D0603.jpeg

05667B9D-CD29-4BE2-8E47-6376F77E4703.jpeg (114.68 KB, 下载次数: 565)

05667B9D-CD29-4BE2-8E47-6376F77E4703.jpeg

1E98AE45-FD8E-4A6A-802F-5A449AE094A1.jpeg (66.96 KB, 下载次数: 590)

1E98AE45-FD8E-4A6A-802F-5A449AE094A1.jpeg

1A169FA3-503B-4F49-A9E5-F0280F615747.png (104.01 KB, 下载次数: 572)

1A169FA3-503B-4F49-A9E5-F0280F615747.png

7770D2BE-5554-45BA-A961-914F74DE377C.jpeg (82.9 KB, 下载次数: 543)

7770D2BE-5554-45BA-A961-914F74DE377C.jpeg

727D02BE-542D-4736-A421-E024DE0D7DBC.jpeg (51.78 KB, 下载次数: 568)

727D02BE-542D-4736-A421-E024DE0D7DBC.jpeg

7774EC81-3D11-46A7-9720-4CA7CA65066A.jpeg (65.36 KB, 下载次数: 590)

7774EC81-3D11-46A7-9720-4CA7CA65066A.jpeg

5DD877E1-D4A0-4CCB-9E5D-057C1FDE4AFF.jpeg (72.67 KB, 下载次数: 560)

5DD877E1-D4A0-4CCB-9E5D-057C1FDE4AFF.jpeg

70DD8EA6-234B-4462-920B-8A754E6623C9.jpeg (136.57 KB, 下载次数: 573)

70DD8EA6-234B-4462-920B-8A754E6623C9.jpeg

D87FB0F5-033D-4B7C-93DD-0E1DE1A82534.jpeg (58.91 KB, 下载次数: 557)

D87FB0F5-033D-4B7C-93DD-0E1DE1A82534.jpeg

386AB466-68BC-4419-8DC6-604A6DAE2C7A.jpeg (71.68 KB, 下载次数: 567)

386AB466-68BC-4419-8DC6-604A6DAE2C7A.jpeg

09A2AD44-DA22-4EB7-BA07-0F8CCA1059ED.jpeg (67.99 KB, 下载次数: 556)

09A2AD44-DA22-4EB7-BA07-0F8CCA1059ED.jpeg

9342AB2B-244F-4BE9-9CDD-15B7C5DDA745.jpeg (60.5 KB, 下载次数: 554)

9342AB2B-244F-4BE9-9CDD-15B7C5DDA745.jpeg

65D1CFDF-2610-45E3-97C1-B31686707C28.jpeg (103.63 KB, 下载次数: 569)

65D1CFDF-2610-45E3-97C1-B31686707C28.jpeg

3FBD67C0-C1F1-4220-928E-262AAC2A1BEC.jpeg (114.22 KB, 下载次数: 558)

3FBD67C0-C1F1-4220-928E-262AAC2A1BEC.jpeg

71DFB4DC-89FB-485C-B050-4316885D741D.jpeg (113.26 KB, 下载次数: 546)

71DFB4DC-89FB-485C-B050-4316885D741D.jpeg

EDBB581C-F07C-4055-97EB-D89532C837FA.jpeg (125.49 KB, 下载次数: 571)

EDBB581C-F07C-4055-97EB-D89532C837FA.jpeg

25D9AA31-F457-4454-921E-0BE01C05E74B.jpeg (120.98 KB, 下载次数: 550)

25D9AA31-F457-4454-921E-0BE01C05E74B.jpeg

8C708969-29D2-48BB-B6E4-DAF10F566669.jpeg (139.4 KB, 下载次数: 582)

8C708969-29D2-48BB-B6E4-DAF10F566669.jpeg





欢迎光临 AdelaideBBS.com_阿德莱德中文网_南澳华人论坛_阿德莱德租房_工作_交友_同城 AdelaideBBS.com中文网 (http://www.baiyumei.com/bbs/) Powered by Discuz! X3.2