| 微信 : Adelaidehelp 联系邮箱 : [email protected] 开启辅助访问
  • 已租【美家地产】Norwood黄金位置4室3卫2车位别墅整租

    浏览人气 : 4093
    18 Clarke Street, Norwood, SA 5067 Property Number : 1434531 价格 : 已租 4 3 2

    Alex

    联系方式 :
    0435274469

    看房时间

    看房时间1 : 10月1日 周六 上午10:15看房

    看房时间2 :

    地理位置
    打印 上一主题 下一主题

    已租【美家地产】Norwood黄金位置4室3卫2车位别墅整租

    [复制链接]

    本内容为网友发布信息,仅代表原作者观点,不代表本平台立场。

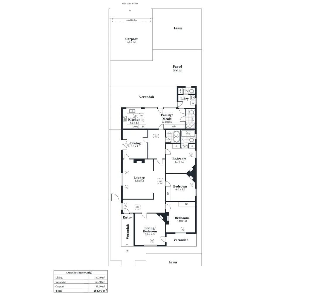
    位于富人区Norwood,位置无可挑剔,环境绝佳,闹中取静。周围商超,餐饮,咖啡厅遍布。公共交通10分钟进城,位于Rose Park Primary 和 Marryatville High学区。是您的家庭梦寐以求的居所。

    9月27日后可入住,长租Only
    $950/周

    - 经典建筑风格,内部奢华装修
    - 四间卧室空间宽敞,三间带有入墙衣柜
    - 主卧配有独立卫浴
    - 宽敞的独立休息室
    - 开放式厨房配有燃气灶,烤箱,洗碗机
    - 独立餐厅
    - 主浴室带有浴缸
    - 3.5米超高层高
    - 中央空调,卧室带有独立壁炉
    - 电动卷帘门双车库
    - 带顶棚的户外娱乐区域
    - 易打理的超大后院,满足一切户外活动需求

    * 押金 - 6 周租金
    * 租期 - 12 个月优先

    请提前预约看房

    有意请联系Alex

    070427wmmmwkhh44aa00h3.png (87.44 KB, 下载次数: 107)

    070427wmmmwkhh44aa00h3.png

    640.png (142.81 KB, 下载次数: 106)

    640.png

    640 (1).png (102.74 KB, 下载次数: 109)

    640 (1).png

    640 (2).png (85.41 KB, 下载次数: 109)

    640 (2).png

    640 (3).png (94.46 KB, 下载次数: 115)

    640 (3).png

    640 (4).png (88.84 KB, 下载次数: 103)

    640 (4).png

    640 (5).png (108.26 KB, 下载次数: 118)

    640 (5).png

    640 (6).png (115.17 KB, 下载次数: 112)

    640 (6).png

    640 (7).png (108.04 KB, 下载次数: 107)

    640 (7).png

    640 (8).png (96.16 KB, 下载次数: 109)

    640 (8).png

    640 (9).png (90.96 KB, 下载次数: 105)

    640 (9).png

    640 (10).png (83.5 KB, 下载次数: 143)

    640 (10).png

    640 (11).png (85.42 KB, 下载次数: 106)

    640 (11).png

    640 (12).png (76.29 KB, 下载次数: 105)

    640 (12).png

    640 (13).png (94.14 KB, 下载次数: 102)

    640 (13).png

    640 (14).png (55.06 KB, 下载次数: 105)

    640 (14).png

    640 (15).png (55.41 KB, 下载次数: 105)

    640 (15).png

    640 (16).png (38.26 KB, 下载次数: 114)

    640 (16).png

    640 (17).png (112.28 KB, 下载次数: 109)

    640 (17).png

    640 (18).png (157.97 KB, 下载次数: 116)

    640 (18).png

    640 (19).png (174.78 KB, 下载次数: 112)

    640 (19).png

    640.jpg (44.47 KB, 下载次数: 112)

    640.jpg

    BBS提醒: 请避免提前支付订金、押金等任何费用,请与对方当面沟通,确认资质并看清条款。谨防上当受骗。

    免责声明: 本网站所提供的信息,只供参考之用。本网站不保证信息的准确性、有效性、及时性和完整性。本网站及其雇员一概毋须以任何方式就任何信息传递或传送的失误、不准确或错误,对用户或任何其他人士负任何直接或间接责任。在法律允许的范围内,本网站在此声明,不承担用户或任何人士就使用或未能使用本网站所提供的信息或任何链接所引致的任何直接、间接、附带、从属、特殊、惩罚性或惩戒性的损害赔偿。

    收藏收藏 顶 踩
    回复

    使用道具 举报

    您需要登录后才可以回帖 登录 | 注册

    本版积分规则

    其他网友还看了 ...

    Copyright @ 2022 AdelaideBBS.com. All rights reserved. User Agreement

    客服号

    公众号