| 微信 : Adelaidehelp 联系邮箱 : [email protected] 开启辅助访问
  • 已租【美家地产】东北区Hope Valley 三房一卫三车位别墅 ...

    浏览人气 : 3803
    8 Tarana Rd, Hope Valley, SA 5090 Property Number : 1435761 价格 : 已租 3 1 3

    Alex

    联系方式 :
    0435274469

    看房时间

    看房时间1 : 8月10日 11:00am - 11:30am

    看房时间2 :

    地理位置
    打印 上一主题 下一主题

    已租【美家地产】东北区Hope Valley 三房一卫三车位别墅整租

    [复制链接]

    本内容为网友发布信息,仅代表原作者观点,不代表本平台立场。

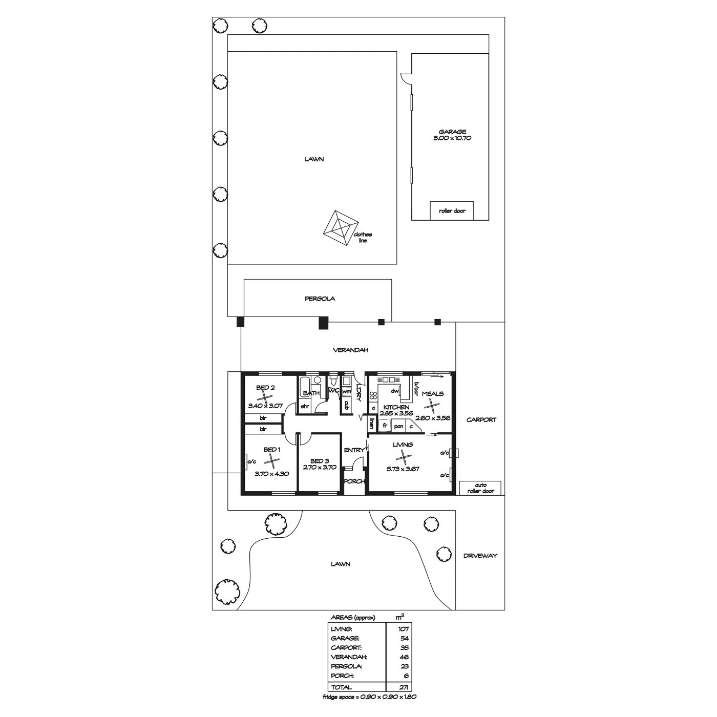
    坐落于一个安静的位置,街区环境优美,步行即可到达巴士站,距离Foodland 只有几百米。几分钟车程即可到TTP、Park & Ride、Modbury 医院和 Obahn Busway 公交站。当地学校包括 Modbury High、Torrens Valley Christian School、Highbury Primary 和 Modbury West School。

    - 全屋木地板
    - 2.7m 的天花板
    - 分体式空调
    - 带空调和吊扇的宽敞客厅
    - 3 间宽敞的卧室带吊扇与入墙衣柜
    - 带独立浴缸和淋浴的浴室
    - 独立卫生间
    - 独立洗衣房,可通往外部
    - 带两车位车库(自动卷帘门)的安全
    - 宽敞的后院,可满足所有户外活动的需要
    - 警报系统

    $460/周
    长租Only

    * 押金 - 6 周租金
    * 租期 - 12 个月优先
    * 无家具

    请提前预约看房

    有意请联系Alex



    070427wmmmwkhh44aa00h3.png (87.44 KB, 下载次数: 124)

    070427wmmmwkhh44aa00h3.png

    QQ截图20220926171552.png (110.1 KB, 下载次数: 126)

    QQ截图20220926171552.png

    QQ截图20220926171421.png (36.92 KB, 下载次数: 133)

    QQ截图20220926171421.png

    92d8bf54df323402b6fa2557e723038.jpg (169.4 KB, 下载次数: 145)

    92d8bf54df323402b6fa2557e723038.jpg

    5d938dd228e4c5cdd74ce0ab881e888.jpg (121.15 KB, 下载次数: 125)

    5d938dd228e4c5cdd74ce0ab881e888.jpg

    90107de2d9d1cad000f1adb628db737.jpg (188.55 KB, 下载次数: 129)

    90107de2d9d1cad000f1adb628db737.jpg

    b3b90d97a401926a6cb8deab7e6719b.jpg (120.69 KB, 下载次数: 126)

    b3b90d97a401926a6cb8deab7e6719b.jpg

    d133fed3a22313bfe1a9046b07b1bc2.jpg (114.03 KB, 下载次数: 128)

    d133fed3a22313bfe1a9046b07b1bc2.jpg

    da4e5863bb48e9b7e62ab475fde67fc.jpg (68.24 KB, 下载次数: 125)

    da4e5863bb48e9b7e62ab475fde67fc.jpg

    3d12ada6d7037930cafe9597daf9df0.jpg (98.78 KB, 下载次数: 130)

    3d12ada6d7037930cafe9597daf9df0.jpg

    QQ截图20220926171448.png (28.97 KB, 下载次数: 123)

    QQ截图20220926171448.png

    QQ截图20220926171503.png (30.52 KB, 下载次数: 133)

    QQ截图20220926171503.png

    cf06d47970daabb81edd8c92e3d0258.jpg (312.56 KB, 下载次数: 128)

    cf06d47970daabb81edd8c92e3d0258.jpg

    1a9dd992c97d6bf0b0f0e113d240898.jpg (434.08 KB, 下载次数: 120)

    1a9dd992c97d6bf0b0f0e113d240898.jpg

    floorplan1_副本.jpg (78.86 KB, 下载次数: 134)

    floorplan1_副本.jpg

    BBS提醒: 请避免提前支付订金、押金等任何费用,请与对方当面沟通,确认资质并看清条款。谨防上当受骗。

    免责声明: 本网站所提供的信息,只供参考之用。本网站不保证信息的准确性、有效性、及时性和完整性。本网站及其雇员一概毋须以任何方式就任何信息传递或传送的失误、不准确或错误,对用户或任何其他人士负任何直接或间接责任。在法律允许的范围内,本网站在此声明,不承担用户或任何人士就使用或未能使用本网站所提供的信息或任何链接所引致的任何直接、间接、附带、从属、特殊、惩罚性或惩戒性的损害赔偿。

    收藏收藏 顶 踩
    回复

    使用道具 举报

    您需要登录后才可以回帖 登录 | 注册

    本版积分规则

    其他网友还看了 ...

    Copyright @ 2022 AdelaideBBS.com. All rights reserved. User Agreement

    客服号

    公众号