| 微信 : Adelaidehelp 联系邮箱 : [email protected] 开启辅助访问
  • 【Harcourts美家】阿德南区Clarence Park 三房一卫两车 ...

    浏览人气 : 1630
    284A Cross Road, Clarence Park, SA 5034 Property Number : 1556031 价格 : $680/周 3 1 2

    Alex

    联系方式 :
    0435 274 469

    看房时间

    看房时间1 :

    看房时间2 :

    地理位置
    打印 上一主题 下一主题

    【Harcourts美家】阿德南区Clarence Park 三房一卫两车位整租部分家具家电

    [复制链接]

    本内容为网友发布信息,仅代表原作者观点,不代表本平台立场。

    阿德南区Clarence Park 三房一卫两车位整租部分家具家电$680/周
    距离市中心不到5公里,尽享便捷生活
    步行距离可达麦当劳,Big W和woolworth,各类商店餐馆
    仅需5-10分钟车程即可到达City和南边大部分学校
    适合学生或者陪读家庭

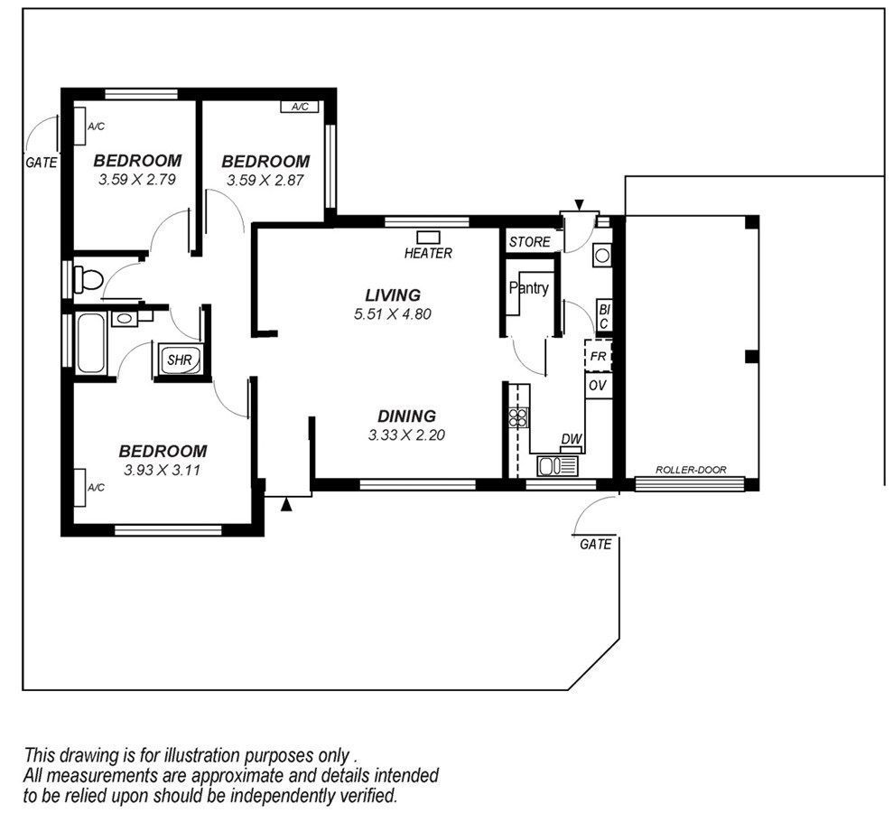
    - 全屋木地板,考虑部分宠物
    - 三间大小一致卧室,两间配备挂机空调,提供衣柜
    - 宽敞的餐厅/起居空间,壁挂式空调,提供沙发
    - 独立厨房间,配有燃气炉灶、洗碗机、烤箱、提供冰箱及充足储物空间
    - 独立洗衣房,带洗衣机并可通往后院低维护后院
    - 两个并排车位空间

    * 押金 - 相当于 4 周租金
    * 租期 - 至少12 个月

    有意联系Alex(加微信请备注地址)



    image.png (60.63 KB, 下载次数: 129)

    image.png

    image.png (117.92 KB, 下载次数: 127)

    image.png

    image.png (99.88 KB, 下载次数: 125)

    image.png

    BBS提醒: 请避免提前支付订金、押金等任何费用,请与对方当面沟通,确认资质并看清条款。谨防上当受骗。

    免责声明: 本网站所提供的信息,只供参考之用。本网站不保证信息的准确性、有效性、及时性和完整性。本网站及其雇员一概毋须以任何方式就任何信息传递或传送的失误、不准确或错误,对用户或任何其他人士负任何直接或间接责任。在法律允许的范围内,本网站在此声明,不承担用户或任何人士就使用或未能使用本网站所提供的信息或任何链接所引致的任何直接、间接、附带、从属、特殊、惩罚性或惩戒性的损害赔偿。

    收藏收藏 顶 踩
    回复

    使用道具 举报

    您需要登录后才可以回帖 登录 | 注册

    本版积分规则

    其他网友还看了 ...

    Copyright @ 2022 AdelaideBBS.com. All rights reserved. User Agreement

    客服号

    公众号