| 微信 : Adelaidehelp 联系邮箱 : [email protected] 开启辅助访问
  • 【Harcourts美家】 Brompton核心地段全新现代联排别墅, ...

    浏览人气 : 2333
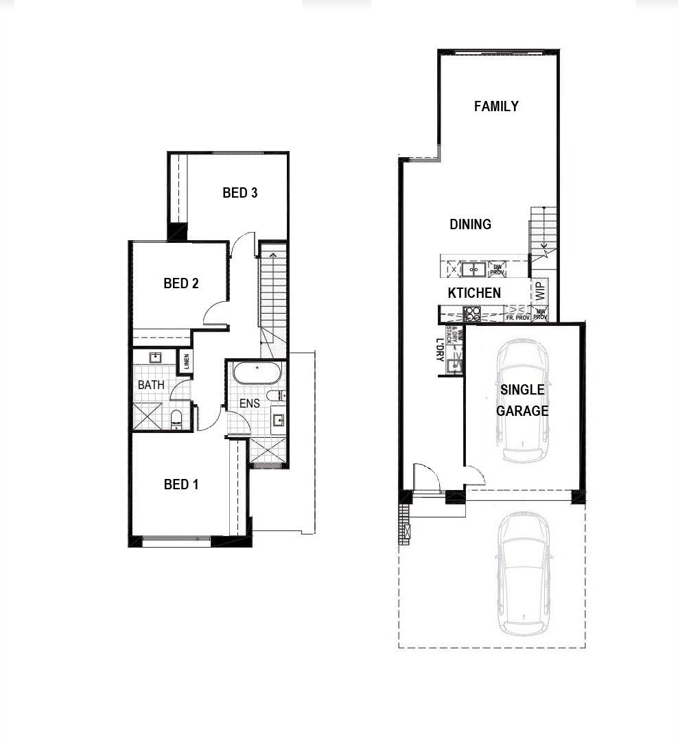
    42 Brown Street, Brompton, SA 5007 Property Number : 1590289 价格 : 780 3 2 2

    William Bai

    联系方式 :
    0402427738

    看房时间

    看房时间1 :

    看房时间2 :

    地理位置
    打印 上一主题 下一主题

    【Harcourts美家】 Brompton核心地段全新现代联排别墅,舒适便捷生活首选

    [复制链接]

    本内容为网友发布信息,仅代表原作者观点,不代表本平台立场。

    入住这座位于Brompton核心地段的现代联排别墅!3 房2衛1車庫
    这处全新房产设计时尚,拥有宽敞的起居空间、优质装修和充足的自然光线。
    地理位置优越,开车10分钟可达市区。
    临近当地便利设施、公园和公共交通,适合追求低维护生活方式的家庭或专业人士。

    • 3间宽敞卧室,配有内置衣柜
    • 2间现代化浴室,配备高档设施
    • 开放式客厅与餐厅,非常适合社交和娱乐
    • 时尚厨房,配备现代电器和充足储物空间
    • 全屋管道式空调,四季舒适
    • 私人后院,低维护园林设计
    • 带内部通道的安全车库, 車道上可再停一輛車
    • 便利位置,靠近学校、购物中心和公共交通

    11月12號可入住
    有意请联系william

    073323epsmppiaqcp5qgn5.jpg (49.29 KB, 下载次数: 113)

    073323epsmppiaqcp5qgn5.jpg

    073324jkihtjklu4hhl568.jpg (61.85 KB, 下载次数: 120)

    073324jkihtjklu4hhl568.jpg

    073325rybri1nnfvahvfng.jpg (135.45 KB, 下载次数: 117)

    073325rybri1nnfvahvfng.jpg

    073325gskv5ntentzkeuil.jpg (116.7 KB, 下载次数: 120)

    073325gskv5ntentzkeuil.jpg

    073325wktkk3r9tpkptwp7.jpg (78.6 KB, 下载次数: 118)

    073325wktkk3r9tpkptwp7.jpg

    073326jxy6n0260qqx8tqj.jpg (56.27 KB, 下载次数: 121)

    073326jxy6n0260qqx8tqj.jpg

    073326ci0rvsh3v85srvor.jpg (48.21 KB, 下载次数: 114)

    073326ci0rvsh3v85srvor.jpg

    073324gi1pu7rurpirqkrf.jpg (117.92 KB, 下载次数: 110)

    073324gi1pu7rurpirqkrf.jpg

    073324q97ogobg7bbftg4u.jpg (127.71 KB, 下载次数: 108)

    073324q97ogobg7bbftg4u.jpg

    073909samkozkmmljksmff.jpg (61.38 KB, 下载次数: 110)

    073909samkozkmmljksmff.jpg

    WeChat Image_20230127162721.jpg (63.16 KB, 下载次数: 115)

    WeChat Image_20230127162721.jpg

    BBS提醒: 请避免提前支付订金、押金等任何费用,请与对方当面沟通,确认资质并看清条款。谨防上当受骗。

    免责声明: 本网站所提供的信息,只供参考之用。本网站不保证信息的准确性、有效性、及时性和完整性。本网站及其雇员一概毋须以任何方式就任何信息传递或传送的失误、不准确或错误,对用户或任何其他人士负任何直接或间接责任。在法律允许的范围内,本网站在此声明,不承担用户或任何人士就使用或未能使用本网站所提供的信息或任何链接所引致的任何直接、间接、附带、从属、特殊、惩罚性或惩戒性的损害赔偿。

    收藏收藏 顶 踩
    回复

    使用道具 举报

    您需要登录后才可以回帖 登录 | 注册

    本版积分规则

    其他网友还看了 ...

    Copyright @ 2022 AdelaideBBS.com. All rights reserved. User Agreement

    客服号

    公众号