| 微信 : Adelaidehelp 联系邮箱 : [email protected] 开启辅助访问
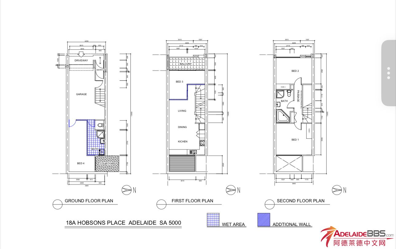
  • 全屋木地板,1月7号以后可以入住 * 走

    查看数: 426 | 评论数: 0 | 收藏 0
    关灯 | 提示:支持键盘翻页<-左 右->
      组图打开中,请稍候......
    发布时间: 6-1-2026 20:25

    正文摘要:

    全屋木地板,1月7号以后可以入住     * 走路两分钟到City South Tram站。     * 整栋楼分三层:两卫四房;现在出租的房间在三层,自带一个大衣柜和向东大窗户。两人share一套卫浴。(不含室内装 ...

    回复

    Copyright @ 2022 AdelaideBBS.com. All rights reserved. User Agreement

    客服号

    公众号