| 微信 : Adelaidehelp 联系邮箱 : [email protected] 开启辅助访问
  • 城镇里性价比最高的海景房!震撼新低价!

    查看数: 2947 | 评论数: 0 | 收藏 0
    关灯 | 提示:支持键盘翻页<-左 右->
      组图打开中,请稍候......
    发布时间: 15-6-2012 19:55

    正文摘要:

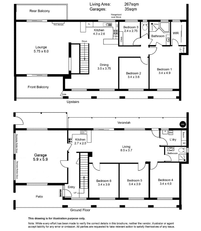
    城镇里性价比最高的海景房!震撼新低价! $650,00076 Esplanade ALDINGA BEACH http://www.adelaidebbs.com/bbs/house.php?mod=list&sortid=2 沙滩上那令人昏昏欲睡的海浪声缓缓入耳,阳台前壮丽的日落之景 ...

    回复

    Copyright @ 2022 AdelaideBBS.com. All rights reserved. User Agreement

    客服号

    公众号