| 微信 : Adelaidehelp 联系邮箱 : [email protected] 开启辅助访问
  • 东北区Modbury两室一卫无家具house整租$300每周

    浏览人气 : 7593
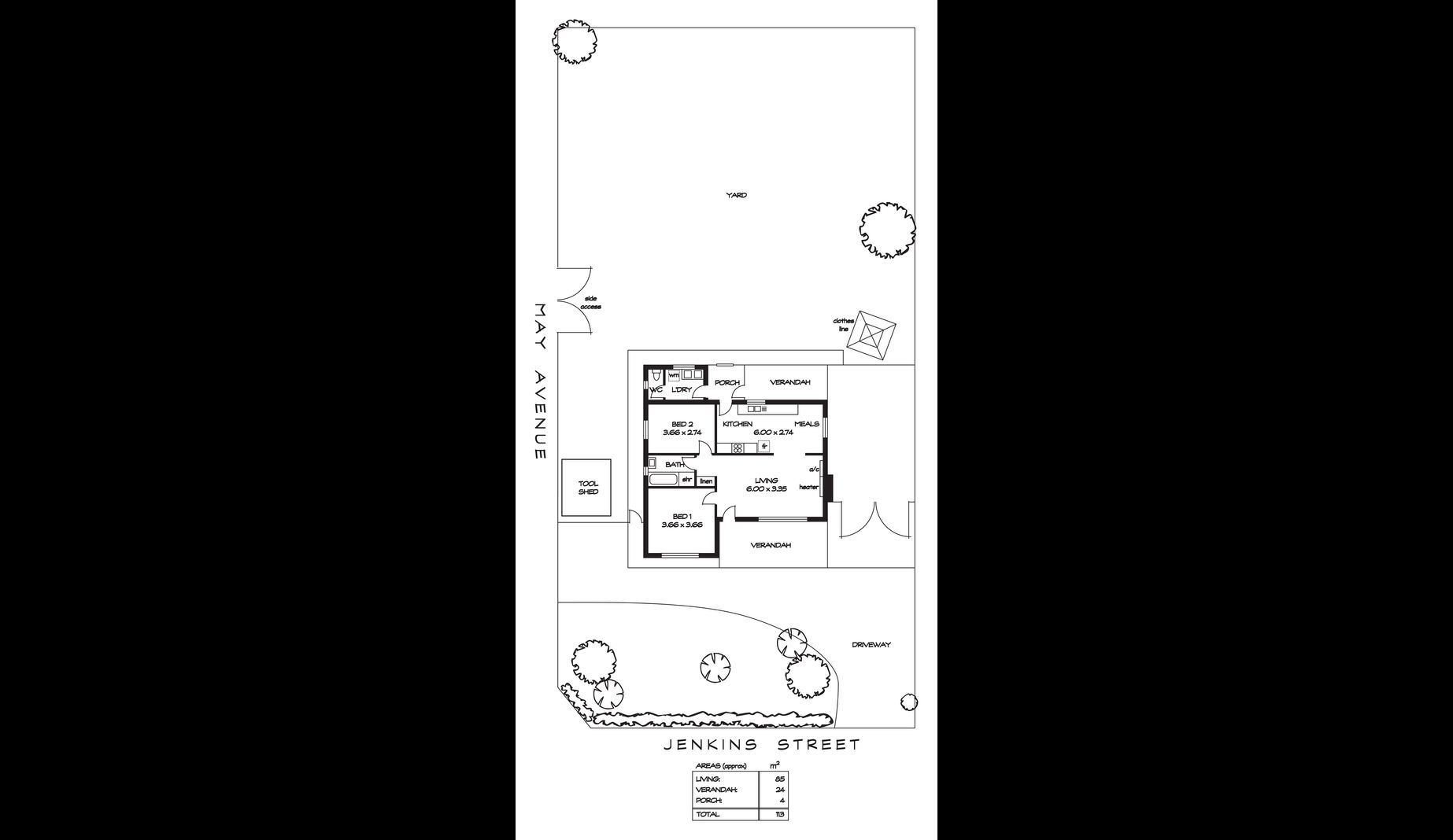
    2 Jenkins street, Modbury Property Number : 1331520 价格 : 300 2 1 2

    Roy

    联系方式 :
    0456500361

    看房时间

    看房时间1 : 请联系中介预约看房

    看房时间2 :

    地理位置
    打印 上一主题 下一主题

    东北区Modbury两室一卫无家具house整租$300每周

    [复制链接]

    本内容为网友发布信息,仅代表原作者观点,不代表本平台立场。

    该房位于东北区Modbury


    出门步行半分钟就可以坐上obhan 去city公交车仅需20分钟

    出门过马路 对面就是tea tree plaza shopping center, 走路仅需3分钟 无论是打工还是购物都相当方便

    房子面积有700平方米,后院面积很大

    两室一卫 车位的话虽然是single carport 但是面积可以停两辆车

    不带家具

    可以接受宠物

    可以立刻入住



    详情请联系中介预约看房

    微信:76862116

    备注:Modbury

    floorplan1.png (61.41 KB, 下载次数: 232)

    floorplan1.png

    image10.jpg (116.64 KB, 下载次数: 219)

    image10.jpg

    image9.jpg (101.05 KB, 下载次数: 219)

    image9.jpg

    image8.jpg (48.64 KB, 下载次数: 240)

    image8.jpg

    image7.jpg (38.96 KB, 下载次数: 215)

    image7.jpg

    image6.jpg (38.71 KB, 下载次数: 208)

    image6.jpg

    image5.jpg (45.36 KB, 下载次数: 225)

    image5.jpg

    image4.jpg (42.24 KB, 下载次数: 219)

    image4.jpg

    image3.jpg (48.77 KB, 下载次数: 249)

    image3.jpg

    image2.jpg (111.14 KB, 下载次数: 224)

    image2.jpg

    main.jpg (117.59 KB, 下载次数: 222)

    main.jpg

    BBS提醒: 请避免提前支付订金、押金等任何费用,请与对方当面沟通,确认资质并看清条款。谨防上当受骗。

    免责声明: 本网站所提供的信息,只供参考之用。本网站不保证信息的准确性、有效性、及时性和完整性。本网站及其雇员一概毋须以任何方式就任何信息传递或传送的失误、不准确或错误,对用户或任何其他人士负任何直接或间接责任。在法律允许的范围内,本网站在此声明,不承担用户或任何人士就使用或未能使用本网站所提供的信息或任何链接所引致的任何直接、间接、附带、从属、特殊、惩罚性或惩戒性的损害赔偿。

    收藏收藏 顶 踩
    回复

    使用道具 举报

    您需要登录后才可以回帖 登录 | 注册

    本版积分规则

    其他网友还看了 ...

    Copyright @ 2022 AdelaideBBS.com. All rights reserved. User Agreement

    客服号

    公众号