| 微信 : Adelaidehelp 联系邮箱 : [email protected] 开启辅助访问
  • 已租【美家地产】东北区 Klemzig 三室两卫别墅整租

    浏览人气 : 4598
    17 Vine Terrace, Klemzig, SA 5087 Property Number : 1416799 价格 : 已租 3 2 4

    Gloria

    联系方式 :
    0430043003

    看房时间

    看房时间1 :

    看房时间2 :

    地理位置
    打印 上一主题 下一主题

    已租【美家地产】东北区 Klemzig 三室两卫别墅整租

    [复制链接]

    本内容为网友发布信息,仅代表原作者观点,不代表本平台立场。

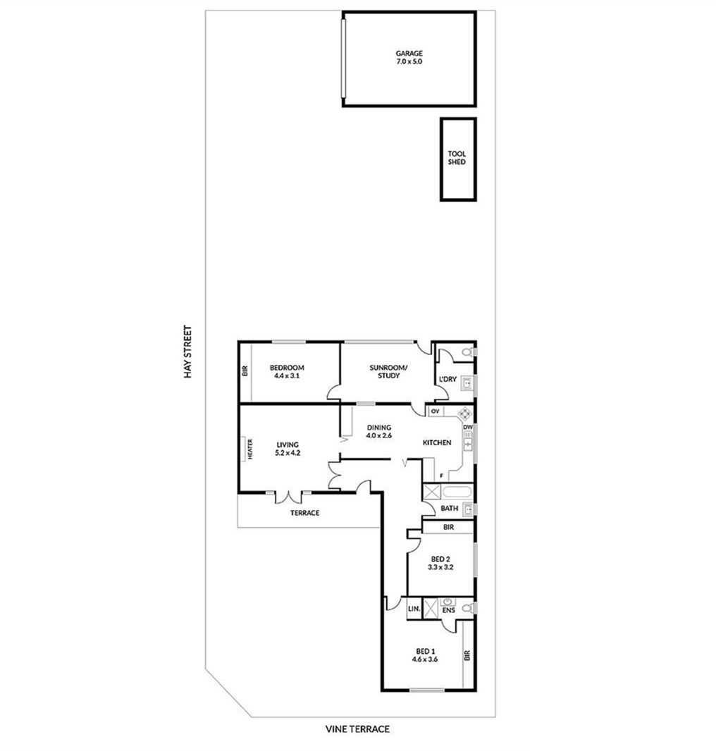
    东北区Klemzig 三室两卫四车位带太阳能板别墅整租
    长租Only 6月13号可入住
    $600/周 宠物可议


    步行抵达 Klemzig O-Bahn公交站,10分钟进城,周围有商超,社区花园等,生活方便。


    700㎡占地,室内外空间宽敞


    三间卧室均带入墙衣柜
    太阳能电池板可节省能源开支
    主卧带有独立卫浴
    独立超大起居室
    独立学习室/阳光房
    独立洗衣房
    现代化开放式厨房,配有烤箱与洗碗机
    超大后院可满足各种室外活动
    独立双车库,共可停放4两车


    * 不带家具
    * 押金 - 6 周租金
    * 租期 - 12 个月优先
    * 租户支付水费


    有意请联系Gloria



    Gloria 名片2.png (84.92 KB, 下载次数: 130)

    Gloria 名片2.png

    main.jpg (203.42 KB, 下载次数: 129)

    main.jpg

    image2.jpg (252.25 KB, 下载次数: 131)

    image2.jpg

    image4.jpg (113.23 KB, 下载次数: 142)

    image4.jpg

    image5.jpg (90.14 KB, 下载次数: 126)

    image5.jpg

    image6.jpg (131.6 KB, 下载次数: 132)

    image6.jpg

    image7.jpg (114.19 KB, 下载次数: 134)

    image7.jpg

    image8.jpg (84.49 KB, 下载次数: 131)

    image8.jpg

    image10.jpg (99.85 KB, 下载次数: 129)

    image10.jpg

    image13.jpg (80.2 KB, 下载次数: 135)

    image13.jpg

    image12.jpg (175.44 KB, 下载次数: 135)

    image12.jpg

    image9.jpg (80.55 KB, 下载次数: 124)

    image9.jpg

    image11.jpg (105.69 KB, 下载次数: 132)

    image11.jpg

    image3.jpg (212.74 KB, 下载次数: 121)

    image3.jpg

    image15.jpg (208.7 KB, 下载次数: 125)

    image15.jpg

    floorplan1.jpg (35.64 KB, 下载次数: 126)

    floorplan1.jpg

    BBS提醒: 请避免提前支付订金、押金等任何费用,请与对方当面沟通,确认资质并看清条款。谨防上当受骗。

    免责声明: 本网站所提供的信息,只供参考之用。本网站不保证信息的准确性、有效性、及时性和完整性。本网站及其雇员一概毋须以任何方式就任何信息传递或传送的失误、不准确或错误,对用户或任何其他人士负任何直接或间接责任。在法律允许的范围内,本网站在此声明,不承担用户或任何人士就使用或未能使用本网站所提供的信息或任何链接所引致的任何直接、间接、附带、从属、特殊、惩罚性或惩戒性的损害赔偿。

    收藏收藏 顶 踩
    回复

    使用道具 举报

    您需要登录后才可以回帖 登录 | 注册

    本版积分规则

    其他网友还看了 ...

    Copyright @ 2022 AdelaideBBS.com. All rights reserved. User Agreement

    客服号

    公众号