| 微信 : Adelaidehelp 联系邮箱 : [email protected] 开启辅助访问
  • 已租【Harcourts美家】东北Felixstow便利位置3房1卫2车 ...

    浏览人气 : 3091
    10 Hartman Avenue, Felixstow, SA 5070 Property Number : 1467721 价格 : 已租 3 1 2

    Gloria

    联系方式 :
    0430043003

    看房时间

    看房时间1 :

    看房时间2 :

    地理位置
    打印 上一主题 下一主题

    已租【Harcourts美家】东北Felixstow便利位置3房1卫2车位别墅(无家具)

    [复制链接]

    本内容为网友发布信息,仅代表原作者观点,不代表本平台立场。

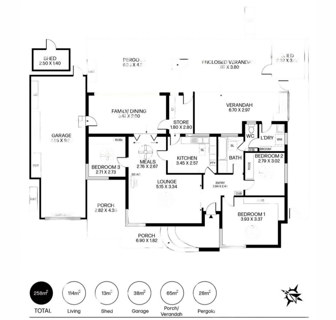
    3 间大小适中的卧室别墅,安静而便利。距Foodland超市仅几步之遥,距市区15分钟路程,距Norwood仅需10分钟路程。

    - 所有三间宽敞的卧室均配有内置衣柜
    - 超大客厅
    - 独立书房/日光浴室
    - 独立洗衣房
    - 带烤箱和独立用餐区的开放式厨房
    - 宽敞的后院适合所有户外活动
    - 单车库
    - 带车间的大型储物棚

    * 无家具
    * 押金 - 相当于 4 周租金
    * 租赁期限 - 12 个月优先
    * 租户支付用水费
    * 宠物可议

    Saturday 3 June10:00 am–10:20 am看房


    有意联系 Gloria(加微信请备注地址)



    640 (8).png (145.73 KB, 下载次数: 115)

    640 (8).png

    640 (9).png (86.62 KB, 下载次数: 144)

    640 (9).png

    640 (10).png (108 KB, 下载次数: 120)

    640 (10).png

    640 (11).png (129.02 KB, 下载次数: 113)

    640 (11).png

    640 (12).png (105.02 KB, 下载次数: 138)

    640 (12).png

    640 (13).png (78.06 KB, 下载次数: 117)

    640 (13).png

    640 (14).png (67.21 KB, 下载次数: 123)

    640 (14).png

    640 (15).png (98.99 KB, 下载次数: 122)

    640 (15).png

    640 (16).png (196.86 KB, 下载次数: 109)

    640 (16).png

    640 (17).png (71.62 KB, 下载次数: 107)

    640 (17).png

    BBS提醒: 请避免提前支付订金、押金等任何费用,请与对方当面沟通,确认资质并看清条款。谨防上当受骗。

    免责声明: 本网站所提供的信息,只供参考之用。本网站不保证信息的准确性、有效性、及时性和完整性。本网站及其雇员一概毋须以任何方式就任何信息传递或传送的失误、不准确或错误,对用户或任何其他人士负任何直接或间接责任。在法律允许的范围内,本网站在此声明,不承担用户或任何人士就使用或未能使用本网站所提供的信息或任何链接所引致的任何直接、间接、附带、从属、特殊、惩罚性或惩戒性的损害赔偿。

    收藏收藏 顶 踩
    回复

    使用道具 举报

    您需要登录后才可以回帖 登录 | 注册

    本版积分规则

    其他网友还看了 ...

    Copyright @ 2022 AdelaideBBS.com. All rights reserved. User Agreement

    客服号

    公众号