| 微信 : Adelaidehelp 联系邮箱 : [email protected] 开启辅助访问
  • 已租【Harcourts美家】东区Payneham近City 全新翻新4房2 ...

    浏览人气 : 1903
    9 Bridge Road Payneham, SA 5070 Property Number : 1505371 价格 : 已租 4 2 2

    Hoiman

    联系方式 :
    请联系微信

    看房时间

    看房时间1 :

    看房时间2 :

    地理位置
    打印 上一主题 下一主题

    已租【Harcourts美家】东区Payneham近City 全新翻新4房2卫 整租

    [复制链接]

    本内容为网友发布信息,仅代表原作者观点,不代表本平台立场。

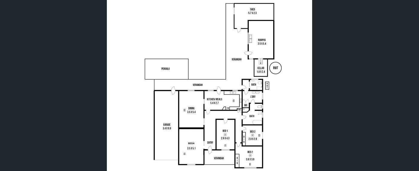
    位置便利生活方便,Firle购物中心仅数分钟车程
    距离阿德莱德市中心仅15分钟车程
    附近有公园、商店、公共交通和学校等

    特色:
    - 2套全新现代化卫浴
    - 4间卧室均带有嵌入式衣柜
    - 时尚现代厨房,燃气做饭
    - 全屋中央空调
    - 带充足储藏空间的后院
    - 带自动卷帘门的单车库,车道上还可停放另一辆车

    *租期:12个月
    *押金:6周的租金
    *水费:租客支付usage与supply
    *可提供部分家具


    有意请联系Hoiman



    BBS提醒: 请避免提前支付订金、押金等任何费用,请与对方当面沟通,确认资质并看清条款。谨防上当受骗。

    免责声明: 本网站所提供的信息,只供参考之用。本网站不保证信息的准确性、有效性、及时性和完整性。本网站及其雇员一概毋须以任何方式就任何信息传递或传送的失误、不准确或错误,对用户或任何其他人士负任何直接或间接责任。在法律允许的范围内,本网站在此声明,不承担用户或任何人士就使用或未能使用本网站所提供的信息或任何链接所引致的任何直接、间接、附带、从属、特殊、惩罚性或惩戒性的损害赔偿。

    收藏收藏 顶 踩
    回复

    使用道具 举报

    您需要登录后才可以回帖 登录 | 注册

    本版积分规则

    其他网友还看了 ...

    Copyright @ 2022 AdelaideBBS.com. All rights reserved. User Agreement

    客服号

    公众号