| 微信 : Adelaidehelp 联系邮箱 : [email protected] 开启辅助访问
  • 【Harcourts美家地产】东区NORWOOD稀罕4房3卫2车库大地 ...

    浏览人气 : 4136
    18 Clarke Street, Norwood, SA 5067 Property Number : 1518202 价格 : 990每周 4 3 2

    Alex Ding

    联系方式 :
    0435274469

    看房时间

    看房时间1 :

    看房时间2 :

    地理位置
    打印 上一主题 下一主题

    【Harcourts美家地产】东区NORWOOD稀罕4房3卫2车库大地精品别墅

    [复制链接]

    本内容为网友发布信息,仅代表原作者观点,不代表本平台立场。

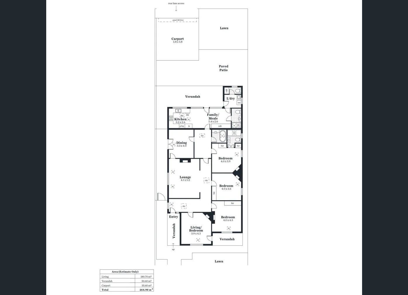
    令人羡慕地坐落在别致而国际化的诺伍德生活方式位置,环境优美,在喧嚣中安静。周围有超市、餐馆和咖啡馆。乘坐公共交通工具仅 10 分钟即可到达中央商务区,位于玫瑰园小学和 Marryatville 高中区。这是您家人的梦想家园。
    特征:
    -整个迷人的抛光地板组合
    - 四间宽敞的卧室,其中三间带内置衣柜
    - 带套间的主卧室
    - 独立的大型正式休息室,毗邻独立的正式餐厅
    - 开放式厨房配有德国美诺 Miele 燃气灶具、烤箱和洗碗机,橱柜空间宽敞
    -总共三个卫生间和三个卫生间
    - 带浴缸的主浴室
    - 3.5米天花板
    - 空调空调,带独立壁炉的卧室
    - 阁楼提供额外存储空间。
    - 带自动卷帘的双车库
    - 带顶棚的户外娱乐区
    -适合所有户外活动的低维护后院

    入住时间:2024年5月29日

    * 没有家具
    * 保证金 - 6 周租金等值
    * 租期 - 首选 12 个月


    image 1.jpg (87.51 KB, 下载次数: 193)

    image 1.jpg

    image 2.jpg (72.82 KB, 下载次数: 171)

    image 2.jpg

    image 3.jpg (68.03 KB, 下载次数: 182)

    image 3.jpg

    image 4.jpg (69.99 KB, 下载次数: 194)

    image 4.jpg

    image 5.jpg (82.25 KB, 下载次数: 177)

    image 5.jpg

    image 6.jpg (60.37 KB, 下载次数: 176)

    image 6.jpg

    image 7.jpg (74.24 KB, 下载次数: 187)

    image 7.jpg

    image 8.jpg (58.93 KB, 下载次数: 186)

    image 8.jpg

    image 9.jpg (66.19 KB, 下载次数: 183)

    image 9.jpg

    image 10.jpg (70.22 KB, 下载次数: 187)

    image 10.jpg

    image 11.jpg (83.9 KB, 下载次数: 185)

    image 11.jpg

    image 12.jpg (37.36 KB, 下载次数: 187)

    image 12.jpg

    image 13.jpg (78.02 KB, 下载次数: 186)

    image 13.jpg

    image 14.jpg (63.54 KB, 下载次数: 183)

    image 14.jpg

    image 15.jpg (64.37 KB, 下载次数: 185)

    image 15.jpg

    image 16.jpg (51.96 KB, 下载次数: 192)

    image 16.jpg

    image 17.jpg (43.76 KB, 下载次数: 181)

    image 17.jpg

    image 18.jpg (58.11 KB, 下载次数: 189)

    image 18.jpg

    image 19.jpg (43.29 KB, 下载次数: 182)

    image 19.jpg

    image 20.jpg (31.18 KB, 下载次数: 186)

    image 20.jpg

    image 21.jpg (96.85 KB, 下载次数: 174)

    image 21.jpg

    image 22.jpg (115.93 KB, 下载次数: 179)

    image 22.jpg

    image 23.jpg (85.89 KB, 下载次数: 182)

    image 23.jpg

    image 24.jpg (127.88 KB, 下载次数: 195)

    image 24.jpg

    image 25.jpg (49.76 KB, 下载次数: 178)

    image 25.jpg

    image main.jpg (107.24 KB, 下载次数: 187)

    image main.jpg

    BBS提醒: 请避免提前支付订金、押金等任何费用,请与对方当面沟通,确认资质并看清条款。谨防上当受骗。

    免责声明: 本网站所提供的信息,只供参考之用。本网站不保证信息的准确性、有效性、及时性和完整性。本网站及其雇员一概毋须以任何方式就任何信息传递或传送的失误、不准确或错误,对用户或任何其他人士负任何直接或间接责任。在法律允许的范围内,本网站在此声明,不承担用户或任何人士就使用或未能使用本网站所提供的信息或任何链接所引致的任何直接、间接、附带、从属、特殊、惩罚性或惩戒性的损害赔偿。

    收藏收藏 顶 踩
    回复

    使用道具 举报

    您需要登录后才可以回帖 登录 | 注册

    本版积分规则

    其他网友还看了 ...

    Copyright @ 2022 AdelaideBBS.com. All rights reserved. User Agreement

    客服号

    公众号