| 微信 : Adelaidehelp 联系邮箱 : [email protected] 开启辅助访问
  • 【Harcourts美家】富人区Beaumont顶级双学区带泳池豪宅

    浏览人气 : 3185
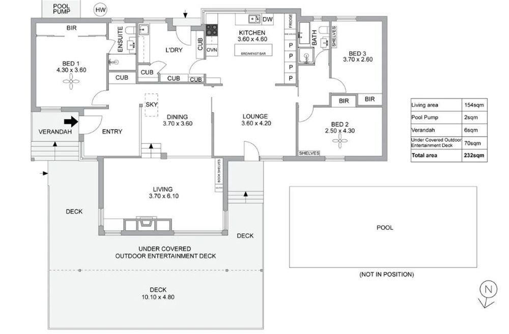
    82 Dashwood Road, Beaumont, SA 5066 Property Number : 1527993 价格 : 900 3 2 2

    Kyle

    联系方式 :
    0426 020 421

    看房时间

    看房时间1 : 周四 25 July 12:30 pm – 12:50 pm

    看房时间2 :

    地理位置
    打印 上一主题 下一主题

    【Harcourts美家】富人区Beaumont顶级双学区带泳池豪宅

    [复制链接]

    本内容为网友发布信息,仅代表原作者观点,不代表本平台立场。

    阿德顶级富人区Beaumont,极品双学区泳池豪宅,享受壮丽城市景观!
    位于Linden Park小学和Glenunga国际高中双顶级学区,环境安静,周围生活方便交通便利,步行可轻松前往公共交通、顶级私立和公立学校、医疗设施以及一系列购物场所,包括著名的Burnside Village购物中心。
    双砖结构采光通风良好,配有超规格泳池与宽敞后院,让您在炎热的澳大利亚夏季尽情享受。超大阳台可观赏绝佳城市景观,起居/用餐空间与三间宽敞卧室,设备齐全的厨房和两间浴室为日常生活提供了便利和舒适。

    -超大阳台观赏壮丽的城市景观
    -三间卧室,为您和您的家人提供宽敞空间
    -超规格泳池+宽敞后院
    -配备现代化家电和充足储藏空间的厨房
    -现代化主卧独立卫浴与共通浴室
    -超大宽敞的朝北露台,供户外娱乐使用
    -带舒适壁炉的客厅采光充足
    -独立洗衣房
    -全屋通风逆循环空调,确保全年舒适
    -配备警报系统,提供增强的安全-Glenunga 学区,可通往一流的公立和私立学校
    -靠近伯Burnside购物中心,方便购物
    -附近有多个商业街 Dashwood Gully Reserve、Davenport Track、Chambers Gully 和 Waterfall Gully
    -方便前往公共场所方便通勤的交通
    -靠近Glenunga International High School, Burnside Primary, Linden Park, Seymour, and St Peter's Girls等名校


    即日可入住
    在线申请链接:https://www.realestate.com.au/pr ... -beaumont-437080248

    有意联系 Kyle(加微信请备注地址)




    BBS提醒: 请避免提前支付订金、押金等任何费用,请与对方当面沟通,确认资质并看清条款。谨防上当受骗。

    免责声明: 本网站所提供的信息,只供参考之用。本网站不保证信息的准确性、有效性、及时性和完整性。本网站及其雇员一概毋须以任何方式就任何信息传递或传送的失误、不准确或错误,对用户或任何其他人士负任何直接或间接责任。在法律允许的范围内,本网站在此声明,不承担用户或任何人士就使用或未能使用本网站所提供的信息或任何链接所引致的任何直接、间接、附带、从属、特殊、惩罚性或惩戒性的损害赔偿。

    收藏收藏 顶 踩
    回复

    使用道具 举报

    您需要登录后才可以回帖 登录 | 注册

    本版积分规则

    其他网友还看了 ...

    Copyright @ 2022 AdelaideBBS.com. All rights reserved. User Agreement

    客服号

    公众号