| 微信 : Adelaidehelp 联系邮箱 : [email protected] 开启辅助访问
  • 【Harcourts美家】Clarence Gardens温馨三房House整租

    浏览人气 : 2165
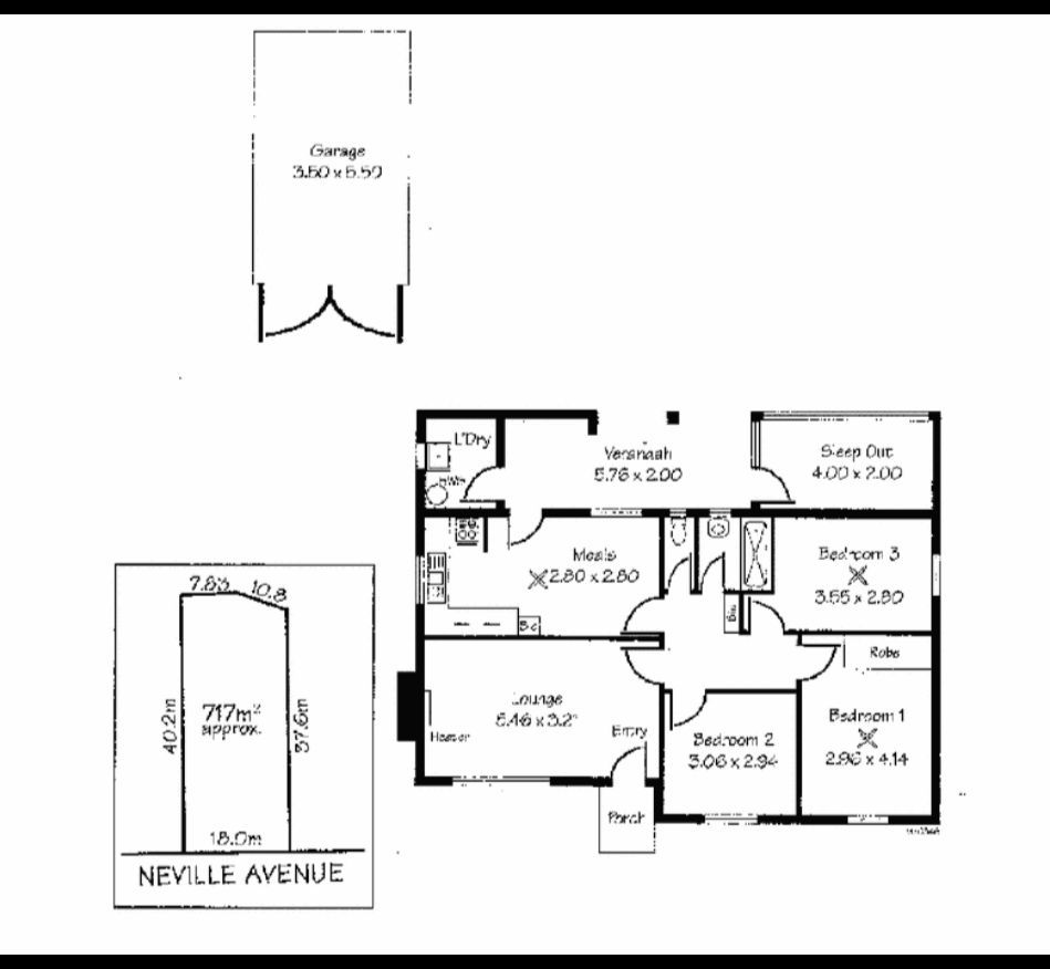
    1 Neville Avenue, Clarence Gardens, SA 5039 Property Number : 1554950 价格 : $580/周 3 1 2

    Gloria

    联系方式 :
    0430043003

    看房时间

    看房时间1 :

    看房时间2 :

    地理位置
    打印 上一主题 下一主题

    【Harcourts美家】Clarence Gardens温馨三房House整租

    [复制链接]

    本内容为网友发布信息,仅代表原作者观点,不代表本平台立场。

    这套精美的四卧两卫住宅提供宽敞舒适的家庭生活空间,精心设计的室内布局,以及带泳池的后院。
    位于优美的社区,地理位置优越,距市区仅5分钟车程,步行即可到达有轨电车、火车和公交站。周边优质学校、购物中心、餐厅和咖啡馆一应俱全,生活便利。

    -私人泳池,配备太阳能加热和清洁系统
    -四间宽敞卧室,均带内置衣柜
    -设有燃气壁炉的家庭房
    -两间现代化浴室
    -设施齐全的开放式厨房
    -带顶棚的户外用餐/娱乐区
    -泳池旁设有遮阳木质露台
    -低维护后院,适合家庭活动
    -配备四个工具房和花园储物棚
    -安保报警系统/自动浇灌系统
    -空调设备,四季舒适


    * 05/02/2025起可入住
    * 押金 - 相当于 4 周租金
    * 租期 - 12 个月

    有意联系Gloria(加微信请备注地址)



    BBS提醒: 请避免提前支付订金、押金等任何费用,请与对方当面沟通,确认资质并看清条款。谨防上当受骗。

    免责声明: 本网站所提供的信息,只供参考之用。本网站不保证信息的准确性、有效性、及时性和完整性。本网站及其雇员一概毋须以任何方式就任何信息传递或传送的失误、不准确或错误,对用户或任何其他人士负任何直接或间接责任。在法律允许的范围内,本网站在此声明,不承担用户或任何人士就使用或未能使用本网站所提供的信息或任何链接所引致的任何直接、间接、附带、从属、特殊、惩罚性或惩戒性的损害赔偿。

    收藏收藏 顶 踩
    回复

    使用道具 举报

    您需要登录后才可以回帖 登录 | 注册

    本版积分规则

    其他网友还看了 ...

    Copyright @ 2022 AdelaideBBS.com. All rights reserved. User Agreement

    客服号

    公众号