| 微信 : Adelaidehelp 联系邮箱 : [email protected] 开启辅助访问
  • 【Harcourts美家】Glen Osmond美宅整租,优雅与现代并存 ...

    浏览人气 : 2148
    12 Myrona Avenue, Glen Osmond, SA 5064 Property Number : 1556053 价格 : $1050/周 4 3 1

    William Bai

    联系方式 :
    0402427738

    看房时间

    看房时间1 :

    看房时间2 :

    地理位置
    打印 上一主题 下一主题

    【Harcourts美家】Glen Osmond美宅整租,优雅与现代并存的高地住宅,学区优选之选

    [复制链接]

    本内容为网友发布信息,仅代表原作者观点,不代表本平台立场。

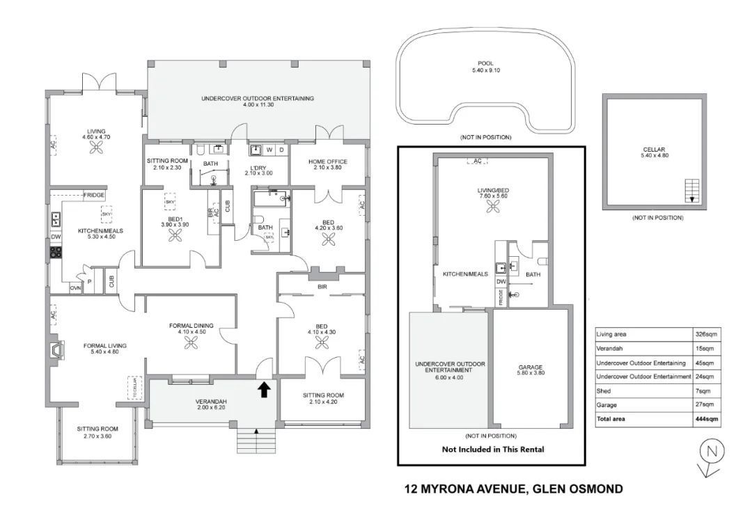
    这栋优雅的住宅坐落于街道的高处,完美融合了永恒的魅力和现代化的便利。房屋拥有三间宽敞的卧室,每间卧室均配有独立的休息区或书房,为居住者提供了舒适的居住空间。主卧还配备了私人套间,进一步提升了便利性。住宅内设有一个正式的用餐区,配有经典的窗边座椅,以及一个温馨的客厅,内设舒适的壁炉。

    现代化的开放式厨房配备了高端电器和时尚的操作台,与轻松的起居空间无缝连接。法式门通向一个宽敞的带顶棚户外娱乐区,铺设了木地板,非常适合招待客人。后院设有一个闪闪发光的地下水池,配备热泵,还有安全的自动前门和充足的街外停车位。其他亮点包括6kw的太阳能电池板系统、13kw的特斯拉电池、中央空调以及全面的安全系统。
    该房产位于备受推崇的Glenunga国际高中的学区范围内,同时也属于Linden Park小学和Glen Osmond小学的学区。周边还有Seymour College等知名学府,生活十分便利。

    请注意:房产后部的独立Granny Flat不包含在此次租赁中,将单独出租。但如果与主屋一起租赁,总租金为$1500/周。

    三间宽敞的卧室,每间均配有独立的休息区或书房
    主卧带套间浴室
    正式用餐区及带壁炉的温馨客厅
    现代化开放式厨房,配备高端电器
    带顶棚的户外娱乐区,铺设木地板
    地下水池,配备热泵
    安全的自动前门及街外停车位
    中央空调及先进的安全系统
    6千瓦太阳能电池板系统及13千瓦特斯拉电池
    位于优质学区内


    * 押金 - 相当于 6 周租金
    * 租期 - 12 个月

    有意联系William(加微信请备注地址)



    BBS提醒: 请避免提前支付订金、押金等任何费用,请与对方当面沟通,确认资质并看清条款。谨防上当受骗。

    免责声明: 本网站所提供的信息,只供参考之用。本网站不保证信息的准确性、有效性、及时性和完整性。本网站及其雇员一概毋须以任何方式就任何信息传递或传送的失误、不准确或错误,对用户或任何其他人士负任何直接或间接责任。在法律允许的范围内,本网站在此声明,不承担用户或任何人士就使用或未能使用本网站所提供的信息或任何链接所引致的任何直接、间接、附带、从属、特殊、惩罚性或惩戒性的损害赔偿。

    收藏收藏 顶 踩
    回复

    使用道具 举报

    您需要登录后才可以回帖 登录 | 注册

    本版积分规则

    其他网友还看了 ...

    Copyright @ 2022 AdelaideBBS.com. All rights reserved. User Agreement

    客服号

    公众号