| 微信 : Adelaidehelp 联系邮箱 : [email protected] 开启辅助访问
  • 【Harcourts美家】Kensington Gardens 优质3房美宅出租

    浏览人气 : 2422
    7A West Terrace, Kensington Gardens, SA 5068 Property Number : 1556055 价格 : $825/周 3 2 2

    William Bai

    联系方式 :
    0402 427 738

    看房时间

    看房时间1 :

    看房时间2 :

    地理位置
    打印 上一主题 下一主题

    【Harcourts美家】Kensington Gardens 优质3房美宅出租

    [复制链接]

    本内容为网友发布信息,仅代表原作者观点,不代表本平台立场。

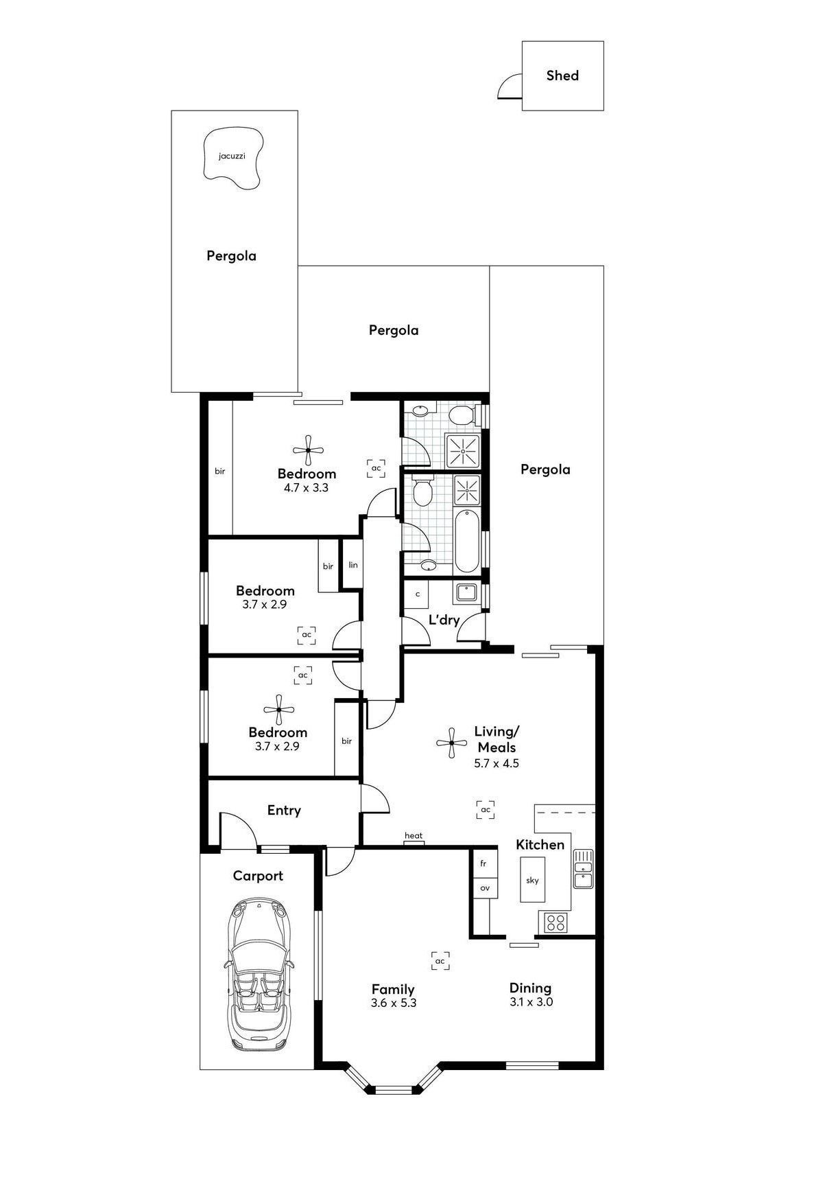
    坐落于Kensington Gardens的中心地带,这座精心维护的住宅提供了一个宽敞且多功能的空间布局,非常适合家庭或专业人士居住。占地609平方米,拥有郁郁葱葱、修剪整齐的花园,这座住宅将舒适、便利和无缝的室内外生活完美结合。
    阳光充足的客厅、开放式生活区以及设备齐全的Smeg厨房,营造出温馨的空间,而三间卧室——包括带独立卫生间的主卧——确保了充足的居住空间。户外区域设有带顶棚的凉棚和地下温泉浴池,非常适合全年娱乐。

    • 宽敞的生活区,包括正式客厅和开放式后部家庭空间
    • 设备齐全的厨房,配备Smeg电器和木质橱柜
    • 三间卧室,均配有内置衣柜,主卧带独立卫生间
    • 全瓷砖主浴室,配有浴缸和无框淋浴
    • 带地下温泉浴池的户外娱乐区
    • 景观优美的花园,营造宁静氛围
    • 靠近Kensington Oval、当地咖啡馆、Norwood Parade和顶尖学校
    • 轻松10分钟通勤至CBD

    押金 - 相当于6周租金
    租期 - 优先考虑12个月租约
    租户需支付水费及供水费用

    有意请联系William





    BBS提醒: 请避免提前支付订金、押金等任何费用,请与对方当面沟通,确认资质并看清条款。谨防上当受骗。

    免责声明: 本网站所提供的信息,只供参考之用。本网站不保证信息的准确性、有效性、及时性和完整性。本网站及其雇员一概毋须以任何方式就任何信息传递或传送的失误、不准确或错误,对用户或任何其他人士负任何直接或间接责任。在法律允许的范围内,本网站在此声明,不承担用户或任何人士就使用或未能使用本网站所提供的信息或任何链接所引致的任何直接、间接、附带、从属、特殊、惩罚性或惩戒性的损害赔偿。

    收藏收藏 顶 踩
    回复

    使用道具 举报

    您需要登录后才可以回帖 登录 | 注册

    本版积分规则

    其他网友还看了 ...

    Copyright @ 2022 AdelaideBBS.com. All rights reserved. User Agreement

    客服号

    公众号