| 微信 : Adelaidehelp 联系邮箱 : [email protected] 开启辅助访问
  • 已租【Harcourts美家】东区Hectorville宁静街道四房整租

    浏览人气 : 2756
    1A Kelvin Avenue, Hectorville, SA 5073 Property Number : 1559869 价格 : $850 4 2 2

    William Bai

    联系方式 :
    0402 427 738

    看房时间

    看房时间1 :

    看房时间2 :

    地理位置
    打印 上一主题 下一主题

    已租【Harcourts美家】东区Hectorville宁静街道四房整租

    [复制链接]

    本内容为网友发布信息,仅代表原作者观点,不代表本平台立场。

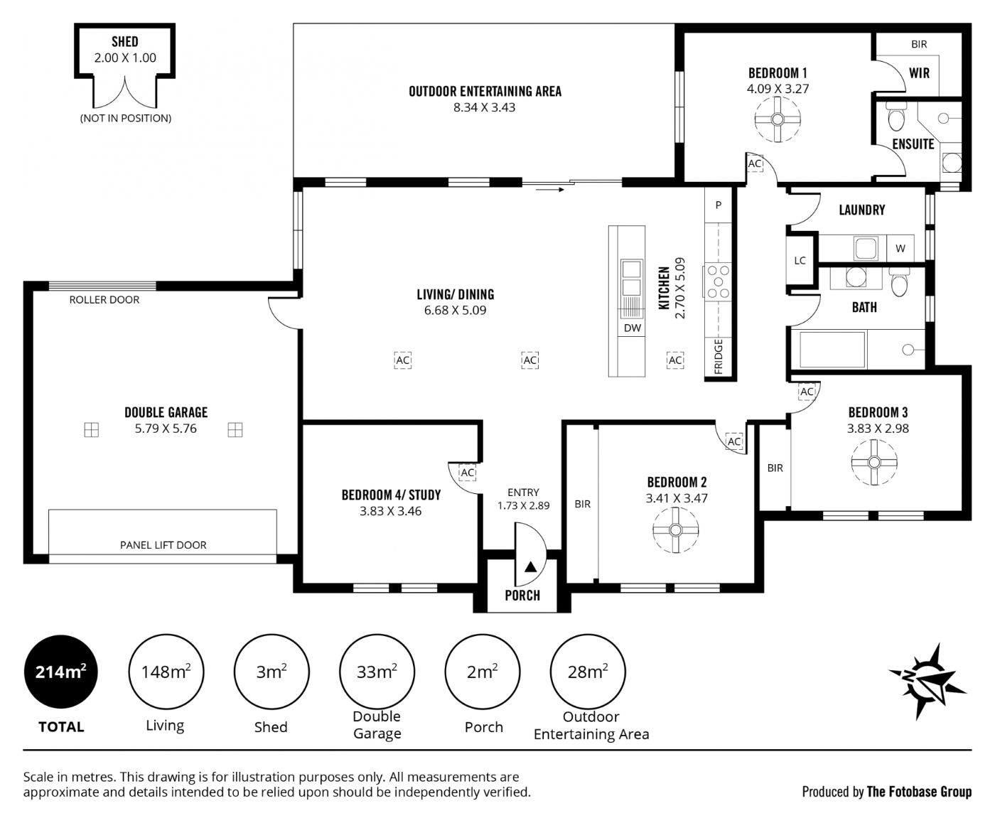
    [size=16.002px]这套四卧室房屋位于东区一条宁静安逸的街道上,地理位置优越,备受追捧。房屋拥有23米宽的宽敞前院,地块面积充足,能够满足您家庭的室内外需求,完美融合了优雅、舒适与私密性。
    [size=16.002px]房屋配备了最新的大金(Daikin)管道式空调系统,带有LED控制面板和手机控制器,甚至车库也装有空调,非常适合作为工作室使用。业主还安装了6.5千瓦的太阳能板和电动汽车充电器,让您的电费账单几乎可以忽略不计。
    [size=16.002px]在家的中心区域,时尚的厨房配备了5灶燃气炉灶、洗碗机、高端电器和充足的储物空间。开放式设计使厨房、餐厅和家庭活动区域无缝连接,并通过推拉门直接通往室外用餐区,方便您享受户外生活。

    • 低维护花园:全围栏和全景观设计,适合锁门即走的生活方式。
    • 安全保障:全自动前门和安全系统,确保家人和宠物的安全。
    • 停车便利:双车库直通后花园,总共有5个安全车位。
    • 户外娱乐:宽敞的30平方米凉廊配有电视,位于宁静的后院,非常适合户外烧烤和招待客人。
    • 隐私保护:安全的自动前门,增加隐私保护。
    • 主卧套房:宽敞的主卧带有独立卫浴和步入式衣帽间。
    • 浴室设计:宽敞的浴室,地板到天花板铺设瓷砖,时尚大气。
    • 多功能空间:第四卧室可作为休息室或家庭办公室,灵活实用。
    • 美食厨房:配备燃气烹饪和高端电器,满足烹饪爱好者的需求。
    • 开放式起居空间:充满自然光,营造明亮舒适的居住环境。
    • 全年舒适:大金逆循环供暖和制冷系统,确保四季如春。
    • 家庭安全:配备家庭报警系统,提供额外安全保障。
    • 凉廊区域:有顶棚的凉廊配有电视,俯瞰绿色草坪,享受户外时光。
    • 低维护院子:全围栏的院子,精心修剪的花园,省心省力。
    • 优质地段:位于东区宁静街道,环境优美,生活便利。

    [size=16.002px]

    • 押金:相当于6周租金。
    • 租约期限:优先考虑12个月租期。
    • 租户责任:租户需支付水费和供水费用。

    [size=16.002px]


    [size=16.002px]有意请联系Willaim



    BBS提醒: 请避免提前支付订金、押金等任何费用,请与对方当面沟通,确认资质并看清条款。谨防上当受骗。

    免责声明: 本网站所提供的信息,只供参考之用。本网站不保证信息的准确性、有效性、及时性和完整性。本网站及其雇员一概毋须以任何方式就任何信息传递或传送的失误、不准确或错误,对用户或任何其他人士负任何直接或间接责任。在法律允许的范围内,本网站在此声明,不承担用户或任何人士就使用或未能使用本网站所提供的信息或任何链接所引致的任何直接、间接、附带、从属、特殊、惩罚性或惩戒性的损害赔偿。

    收藏收藏 顶 踩
    回复

    使用道具 举报

    您需要登录后才可以回帖 登录 | 注册

    本版积分规则

    其他网友还看了 ...

    Copyright @ 2022 AdelaideBBS.com. All rights reserved. User Agreement

    客服号

    公众号