| 微信 : Adelaidehelp 联系邮箱 : [email protected] 开启辅助访问
  • 已租【Harcourts美家】Magill黄金地段别墅整租

    浏览人气 : 2925
    49 Jervois Avenue, Magill, SA 5072 Property Number : 1560557 价格 : 630 2 1 3

    William

    联系方式 :
    0402427738

    看房时间

    看房时间1 : Wednesday 26 March 5:00 pm–5:30 pm

    看房时间2 :

    地理位置
    打印 上一主题 下一主题

    已租【Harcourts美家】Magill黄金地段别墅整租

    [复制链接]

    本内容为网友发布信息,仅代表原作者观点,不代表本平台立场。

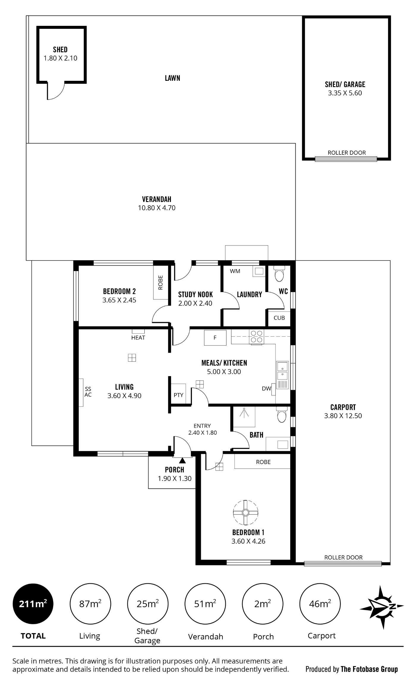
    位于备受欢迎的Magill社区,这座精美的石砖住宅拥有极佳的地理位置,周边设施便利。您可以轻松前往著名的 Penfolds Magill Estate 酒庄,或在 Long Lost Friend Café 享受悠闲时光,附近还有 The Parade Eatery 和各类本地餐厅,为您提供丰富的美食选择。此外,Aldi超市、Magill Village和Firle Plaza购物中心近在咫尺,满足您的日常生活所需。对于家庭来说,该物业位于 Magill Primary SchoolNorwood International High School 的学区范围内,是优质教育资源的理想选择。

    房屋特点:
    -经典石砖外观,优雅大气
    -两间宽敞卧室,主卧和次卧均带入墙式衣柜(BIR)
    -现代化厨房,配备洗碗机、SMEG品牌不锈钢厨具和燃气灶
    -浴室地面到天花板全瓷砖设计,现代感十足
    -宽敞户外娱乐区,带凉棚和绿地,适合烧烤聚会和户外休闲
    -大型上锁车库 + 额外花园储物棚
    -舒适生活设施:硬木抛光地板、中央蒸发式空调、燃气加热器、分体式空调、全屋LED嵌入式灯光
    -电动卷帘窗,提高安全性和隐私度
    -独立洗衣房,配备第二个卫生间
    这座1958年建造并精心翻新的住宅,不仅保留了经典建筑的韵味,同时提供了现代生活的便捷与舒适。无论您是首次购房者、投资者,还是想寻找一个安静宜居的家,这处房产都将是您的理想之选。

    租赁信息:
    *租期:优先12个月
    *押金:4周租金
    *家具:不带家具
    *水费:租客需支付水费和供水费用

    有意请联系William:

    _MG_7033.jpg (361.19 KB, 下载次数: 184)

    _MG_7033.jpg

    _MG_7018a.jpg (304.75 KB, 下载次数: 170)

    _MG_7018a.jpg

    _MG_7015a.jpg (326.17 KB, 下载次数: 193)

    _MG_7015a.jpg

    _MG_6999.jpg (185.38 KB, 下载次数: 180)

    _MG_6999.jpg

    _MG_6994.jpg (212.69 KB, 下载次数: 193)

    _MG_6994.jpg

    _MG_6986.jpg (183.48 KB, 下载次数: 184)

    _MG_6986.jpg

    _MG_6956.jpg (196.25 KB, 下载次数: 181)

    _MG_6956.jpg

    _MG_6951.jpg (204.94 KB, 下载次数: 175)

    _MG_6951.jpg

    _MG_6948.jpg (152.72 KB, 下载次数: 175)

    _MG_6948.jpg

    _MG_6943.jpg (137.98 KB, 下载次数: 174)

    _MG_6943.jpg

    BBS提醒: 请避免提前支付订金、押金等任何费用,请与对方当面沟通,确认资质并看清条款。谨防上当受骗。

    免责声明: 本网站所提供的信息,只供参考之用。本网站不保证信息的准确性、有效性、及时性和完整性。本网站及其雇员一概毋须以任何方式就任何信息传递或传送的失误、不准确或错误,对用户或任何其他人士负任何直接或间接责任。在法律允许的范围内,本网站在此声明,不承担用户或任何人士就使用或未能使用本网站所提供的信息或任何链接所引致的任何直接、间接、附带、从属、特殊、惩罚性或惩戒性的损害赔偿。

    收藏收藏 顶 踩
    回复

    使用道具 举报

    您需要登录后才可以回帖 登录 | 注册

    本版积分规则

    其他网友还看了 ...

    Copyright @ 2022 AdelaideBBS.com. All rights reserved. User Agreement

    客服号

    公众号