| 微信 : Adelaidehelp 联系邮箱 : [email protected] 开启辅助访问
  • 已租【Harcourts美家】Warradale 三房别墅整租

    浏览人气 : 2097
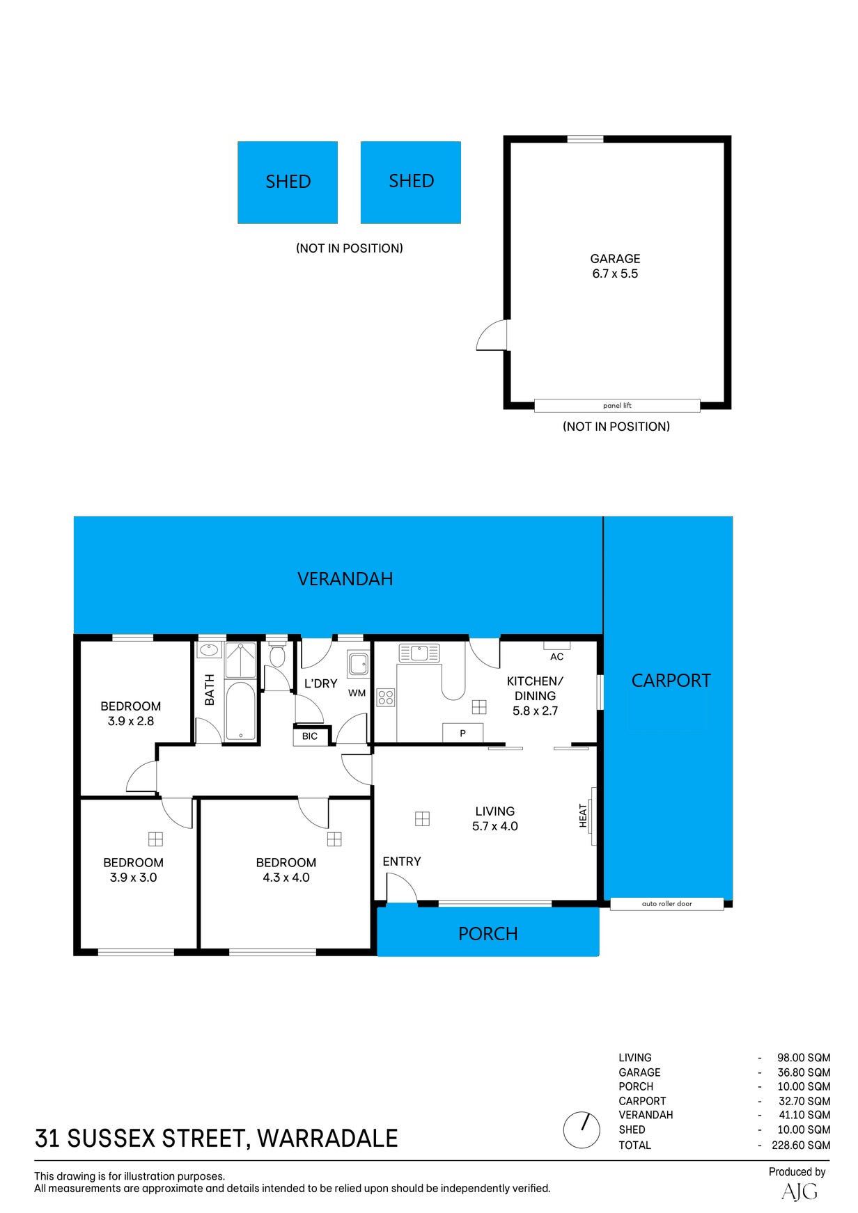
    31 Sussex Street, Warradale Property Number : 1583156 价格 : 620每周 3 1 2

    Will Wu

    联系方式 :
    0450537663

    看房时间

    看房时间1 :

    看房时间2 :

    地理位置
    打印 上一主题 下一主题

    已租【Harcourts美家】Warradale 三房别墅整租

    [复制链接]

    本内容为网友发布信息,仅代表原作者观点,不代表本平台立场。

    这套三房别墅位于Warradale,占地面积宽敞,地理位置优越。
    距离Westfield Marion购物中心仅1.5公里,驾车片刻即可抵达Brighton Beach海滩,极具潜力和便利性。

    房屋特色:
    • 三间舒适卧室,为家庭提供充足居住空间
    • 宽敞客厅配备燃气暖气和全屋管道空调,四季舒适
    • 设备齐全的厨房配燃气灶台和充足橱柜储物空间,连接餐厅区域
    • 中央浴室设有浴缸、淋浴和盥洗台,额外储物空间

    地段优势:
    • 步行即达Warradale Park Reserve休闲公园
    • 距最近公交站约250米,可直达CBD
    • 距Warradale火车站约1公里(步行15分钟)
    • 5分钟车程抵达Brighton Beach,享受海滨生活方式
    • 靠近优质学校,包括Brighton Secondary、Brighton Primary和Warradale Primary
    • 便捷前往Brighton Jetty Road餐饮娱乐区
    • 短途驾车即达SA Aquatic & Leisure Centre和当地公园

    租赁条件:
    • 押金:4周租金
    • 租期:优先12个月
    • 不含家具

    有意请联系Will

    1.png (430.64 KB, 下载次数: 157)

    1.png

    BBS提醒: 请避免提前支付订金、押金等任何费用,请与对方当面沟通,确认资质并看清条款。谨防上当受骗。

    免责声明: 本网站所提供的信息,只供参考之用。本网站不保证信息的准确性、有效性、及时性和完整性。本网站及其雇员一概毋须以任何方式就任何信息传递或传送的失误、不准确或错误,对用户或任何其他人士负任何直接或间接责任。在法律允许的范围内,本网站在此声明,不承担用户或任何人士就使用或未能使用本网站所提供的信息或任何链接所引致的任何直接、间接、附带、从属、特殊、惩罚性或惩戒性的损害赔偿。

    收藏收藏 顶 踩
    回复

    使用道具 举报

    您需要登录后才可以回帖 登录 | 注册

    本版积分规则

    其他网友还看了 ...

    Copyright @ 2022 AdelaideBBS.com. All rights reserved. User Agreement

    客服号

    公众号