| 微信 : Adelaidehelp 联系邮箱 : [email protected] 开启辅助访问
  • 【信德热租】Parafield Gardens 三房两浴一车库|太阳能 ...

    浏览人气 : 1504
    93 The Boulevard, Parafield Gardens, SA 5107 Property Number : 1605314 价格 : 650 3 2 1

    David

    联系方式 :
    0430589210

    看房时间

    看房时间1 :

    看房时间2 :

    地理位置
    打印 上一主题 下一主题

    【信德热租】Parafield Gardens 三房两浴一车库|太阳能+电池|中央空调|近学校

    [复制链接]

    本内容为网友发布信息,仅代表原作者观点,不代表本平台立场。

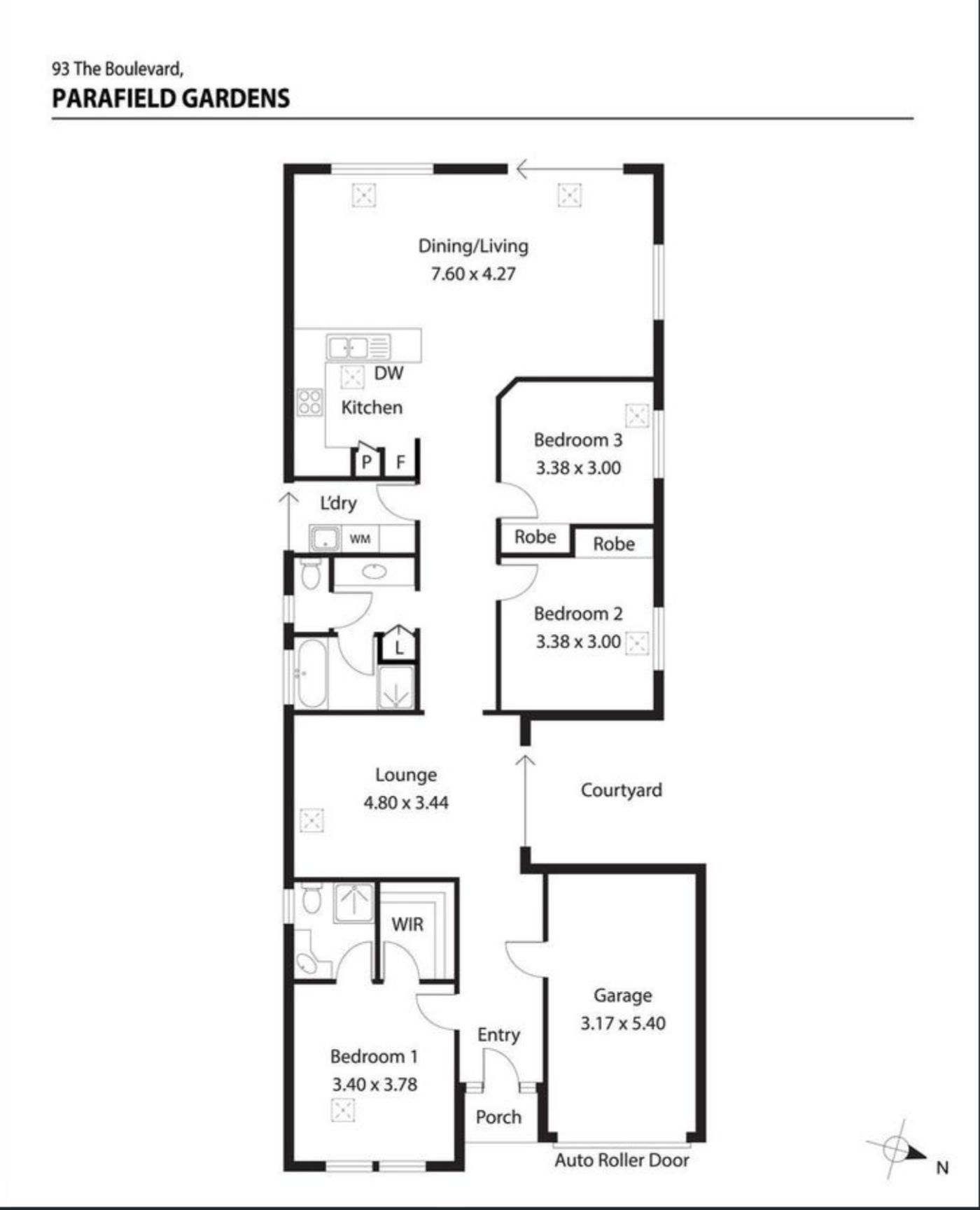
    Parafield Gardens 三房两浴一车库|太阳能+电池|中央空调|近学校商店交通
    地址:93 The Boulevard, Parafield Gardens SA 5107
    房型:3房 / 2浴 / 1车位(带车库)
    适合家庭居住|舒适节能|拎包入住(不含家具)

    申请方式(How to apply)
    如需申请该房源,请通过 realestate.com.au 点击 APPLY 按钮在线提交申请。

    租赁信息
    • **Bond(押金):**4周租金
    • **租期:**12个月
    • **水费:**租客承担所有用水费 + 水供应费(Water usage & supply)
    • **配套:**不带家具(Unfurnished)


    房屋亮点(现代舒适 + 节能省电)
    欢迎来到这套现代又环保舒适的家!房屋配备中央管道空调、太阳能+电池系统,并拥有多个宽敞生活区域,无论是家庭休闲还是朋友聚会都非常合适。

    室内亮点(Indoor Highlights)
    宽敞明亮的餐厅/客厅,与现代厨房无缝衔接
    厨房配备:燃气灶、洗碗机、充足储物空间
    两个独立客厅区域:正式客厅 + 开放式起居空间
    三间大卧室:其中两间带入墙衣柜(BIR)
    主卧套房:步入式衣帽间(WIR)+ 独立卫浴(Ensuite)
    主卫浴配备:浴缸 + 淋浴分离设计
    全屋中央管道空调(Ducted Air Conditioning),四季舒适

    🌿户外&节能系统(Outdoor & Sustainability)
    私密、低维护后院/庭院(Courtyard),适合户外用餐或休闲
    绿化景观整洁,现代感强
    13.2kWh太阳能系统 + 16kWh电池
    大幅降低电费,环保又省钱!

    车位&地段(Parking & Location)
    安全车库,配自动卷门(Auto roller door)
    步行可达:学校、公园、商店、公共交通
    日常生活&通勤都非常方便!

    联系看房
    有兴趣者请联系 David
    电话:0430 589 210
    邮箱:[email protected]


    Sinova Property (RLA 293907)

    Screenshot 2026-01-22 at 3.59.46pm.png (186.03 KB, 下载次数: 82)

    Screenshot 2026-01-22 at 3.59.46pm.png

    Screenshot 2026-01-22 at 3.59.40pm.png (183.68 KB, 下载次数: 75)

    Screenshot 2026-01-22 at 3.59.40pm.png

    Screenshot 2026-01-22 at 3.59.53pm.png (119.29 KB, 下载次数: 82)

    Screenshot 2026-01-22 at 3.59.53pm.png

    Screenshot 2026-01-22 at 3.59.59pm.png (112.6 KB, 下载次数: 77)

    Screenshot 2026-01-22 at 3.59.59pm.png

    Screenshot 2026-01-22 at 4.00.05pm.png (102.76 KB, 下载次数: 75)

    Screenshot 2026-01-22 at 4.00.05pm.png

    Screenshot 2026-01-22 at 4.00.11pm.png (115.03 KB, 下载次数: 79)

    Screenshot 2026-01-22 at 4.00.11pm.png

    Screenshot 2026-01-22 at 4.00.17pm.png (116.67 KB, 下载次数: 71)

    Screenshot 2026-01-22 at 4.00.17pm.png

    Screenshot 2026-01-22 at 4.00.23pm.png (98.4 KB, 下载次数: 68)

    Screenshot 2026-01-22 at 4.00.23pm.png

    Screenshot 2026-01-22 at 4.00.29pm.png (106.53 KB, 下载次数: 77)

    Screenshot 2026-01-22 at 4.00.29pm.png

    Screenshot 2026-01-22 at 4.00.35pm.png (109.33 KB, 下载次数: 75)

    Screenshot 2026-01-22 at 4.00.35pm.png

    Screenshot 2026-01-22 at 4.00.41pm.png (118.49 KB, 下载次数: 74)

    Screenshot 2026-01-22 at 4.00.41pm.png

    Screenshot 2026-01-22 at 4.00.46pm.png (92.33 KB, 下载次数: 84)

    Screenshot 2026-01-22 at 4.00.46pm.png

    Screenshot 2026-01-22 at 4.00.51pm.png (100.88 KB, 下载次数: 85)

    Screenshot 2026-01-22 at 4.00.51pm.png

    Screenshot 2026-01-22 at 4.01.00pm.png (200.59 KB, 下载次数: 72)

    Screenshot 2026-01-22 at 4.01.00pm.png

    Screenshot 2026-01-22 at 4.01.06pm.png (90.82 KB, 下载次数: 75)

    Screenshot 2026-01-22 at 4.01.06pm.png

    BBS提醒: 请避免提前支付订金、押金等任何费用,请与对方当面沟通,确认资质并看清条款。谨防上当受骗。

    免责声明: 本网站所提供的信息,只供参考之用。本网站不保证信息的准确性、有效性、及时性和完整性。本网站及其雇员一概毋须以任何方式就任何信息传递或传送的失误、不准确或错误,对用户或任何其他人士负任何直接或间接责任。在法律允许的范围内,本网站在此声明,不承担用户或任何人士就使用或未能使用本网站所提供的信息或任何链接所引致的任何直接、间接、附带、从属、特殊、惩罚性或惩戒性的损害赔偿。

    收藏收藏 顶 踩
    回复

    使用道具 举报

    您需要登录后才可以回帖 登录 | 注册

    本版积分规则

    其他网友还看了 ...

    Copyright @ 2022 AdelaideBBS.com. All rights reserved. User Agreement

    客服号

    公众号