| 微信 : Adelaidehelp 联系邮箱 : [email protected] 开启辅助访问
  • 【Harcourts美家】东北Lightsview 两室全家具别墅整租

    浏览人气 : 128
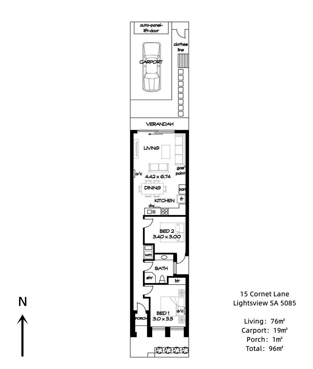
    15 Cornet Lane, Lightsview, SA 5085 Property Number : 1606938 价格 : 600 2 1 1

    Hoi Man Wong

    联系方式 :
    0416145604

    看房时间

    看房时间1 :

    看房时间2 :

    地理位置
    打印 上一主题 下一主题

    【Harcourts美家】东北Lightsview 两室全家具别墅整租

    [复制链接]

    本内容为网友发布信息,仅代表原作者观点,不代表本平台立场。

    位於距離阿德萊德市中心(CBD)僅約 8 公里的便利地段,交通與生活機能極佳,鄰近 Northgate 及 Greenacres 購物中心,周邊有多間超市、咖啡店、餐廳及各類日常生活設施。附近亦有多個公園、步道及運動中心,適合享受戶外生活。
    • 全套傢俬,拎包即可入住
    • 開放式廚房,配備煤氣爐、焗爐、洗碗機及雪櫃
    • 兩間寬敞睡房
    • 現代化浴室
    • 分體式冷氣
    • 低維護後院
    • 私人車位,設有自動捲門

    *按金:相等於 4 週租金
    *租期:優先考慮 12 個月
    *租客需支付用水費及水費供應費

    image (3).jpg (64.19 KB, 下载次数: 0)

    image (3).jpg

    image (1).jpg (102.19 KB, 下载次数: 0)

    image (1).jpg

    image (2).jpg (97.17 KB, 下载次数: 0)

    image (2).jpg

    Image_20260206110714_791_34.jpg (175.41 KB, 下载次数: 1)

    Image_20260206110714_791_34.jpg

    Image_20260206110718_792_34.jpg (146.16 KB, 下载次数: 0)

    Image_20260206110718_792_34.jpg

    Image_20260206110721_793_34.jpg (149.89 KB, 下载次数: 0)

    Image_20260206110721_793_34.jpg

    Image_20260206110729_795_34.jpg (187.76 KB, 下载次数: 2)

    Image_20260206110729_795_34.jpg

    Image_20260206110733_796_34.jpg (137.96 KB, 下载次数: 0)

    Image_20260206110733_796_34.jpg

    Image_20260206110736_797_34.jpg (173.18 KB, 下载次数: 0)

    Image_20260206110736_797_34.jpg

    Image_20260206110740_798_34.jpg (147.57 KB, 下载次数: 0)

    Image_20260206110740_798_34.jpg

    WeChat Image_20230105130814.jpg (61.11 KB, 下载次数: 0)

    WeChat Image_20230105130814.jpg

    BBS提醒: 请避免提前支付订金、押金等任何费用,请与对方当面沟通,确认资质并看清条款。谨防上当受骗。

    免责声明: 本网站所提供的信息,只供参考之用。本网站不保证信息的准确性、有效性、及时性和完整性。本网站及其雇员一概毋须以任何方式就任何信息传递或传送的失误、不准确或错误,对用户或任何其他人士负任何直接或间接责任。在法律允许的范围内,本网站在此声明,不承担用户或任何人士就使用或未能使用本网站所提供的信息或任何链接所引致的任何直接、间接、附带、从属、特殊、惩罚性或惩戒性的损害赔偿。

    收藏收藏 顶 踩
    回复

    使用道具 举报

    您需要登录后才可以回帖 登录 | 注册

    本版积分规则

    其他网友还看了 ...

    Copyright @ 2022 AdelaideBBS.com. All rights reserved. User Agreement

    客服号

    公众号