| 微信 : Adelaidehelp 联系邮箱 : [email protected] 开启辅助访问
  • 【Harcourts St Peters】东区Hazelwood Park精致2房Unit

    浏览人气 : 99
    2/6 Linden Avenue, Hazelwood Park, SA 5066 Property Number : 1616734 价格 : 650/周 2 1 1

    William Bai

    联系方式 :
    0402427738

    看房时间

    看房时间1 :

    看房时间2 :

    地理位置
    打印 上一主题 下一主题

    【Harcourts St Peters】东区Hazelwood Park精致2房Unit

    [复制链接]

    本内容为网友发布信息,仅代表原作者观点,不代表本平台立场。

    舒适明亮现代住宅 | 优越空间与品质生活
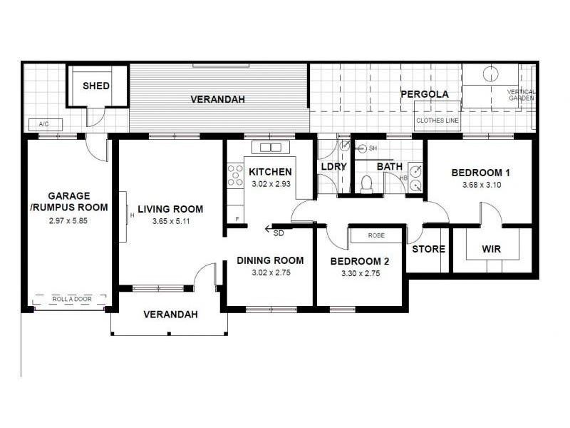
    这套精心维护的住宅完美融合宽敞空间、充足采光与现代化设施,为您带来舒适便利的居住体验。房屋拥有宽敞客厅、明亮餐厅、配备高端电器的现代厨房,以及全新升级的浴室和洗衣房。整体设计实用且温馨,适合家庭或专业人士居住。
    🏡 房屋亮点:
    • 🍽️ 现代厨房与浴室:石材台面 + 玻璃防溅板,高端质感
    • 🛏️ 宽敞卧室:主卧带步入式衣帽间,次卧内置衣柜
    • 📦 超大储物空间:额外步入式储藏室
    • ❄️🔥 全年舒适:中央冷暖空调 + 木质百叶窗
    • 🌿 户外生活空间:带顶露台、垂直花园、小型储物棚
    • 🚗 车库:具备改造潜力
    📅 可入住时间:2026年5月7日
    💰 押金:相当于4周租金
    📄 租期:优先12个月
    💧 费用说明:租客需承担水费(使用费及供应费)
    📞 欢迎随时咨询预约看房!

    Image_20240403141432.jpg (63.16 KB, 下载次数: 0)

    Image_20240403141432.jpg

    main.jpg (130.08 KB, 下载次数: 0)

    main.jpg

    image2.jpg (41.47 KB, 下载次数: 1)

    image2.jpg

    image3.jpg (42.5 KB, 下载次数: 0)

    image3.jpg

    image4.jpg (43.29 KB, 下载次数: 0)

    image4.jpg

    image5.jpg (40.51 KB, 下载次数: 1)

    image5.jpg

    image6.jpg (39.22 KB, 下载次数: 0)

    image6.jpg

    image7.jpg (106.82 KB, 下载次数: 0)

    image7.jpg

    image8.jpg (79.9 KB, 下载次数: 0)

    image8.jpg

    floorplan1.jpg (46.98 KB, 下载次数: 0)

    floorplan1.jpg

    BBS提醒: 请避免提前支付订金、押金等任何费用,请与对方当面沟通,确认资质并看清条款。谨防上当受骗。

    免责声明: 本网站所提供的信息,只供参考之用。本网站不保证信息的准确性、有效性、及时性和完整性。本网站及其雇员一概毋须以任何方式就任何信息传递或传送的失误、不准确或错误,对用户或任何其他人士负任何直接或间接责任。在法律允许的范围内,本网站在此声明,不承担用户或任何人士就使用或未能使用本网站所提供的信息或任何链接所引致的任何直接、间接、附带、从属、特殊、惩罚性或惩戒性的损害赔偿。

    收藏收藏 顶 踩
    回复

    使用道具 举报

    您需要登录后才可以回帖 登录 | 注册

    本版积分规则

    其他网友还看了 ...

    Copyright @ 2022 AdelaideBBS.com. All rights reserved. User Agreement

    客服号

    公众号