| 微信 : Adelaidehelp 联系邮箱 : [email protected] 开启辅助访问
  • Westbourne Park 2房UNIT出租

    查看数: 2559 | 评论数: 0 | 收藏 0
    关灯 | 提示:支持键盘翻页<-左 右->
      组图打开中,请稍候......
    发布时间: 29-10-2019 12:28

    正文摘要:

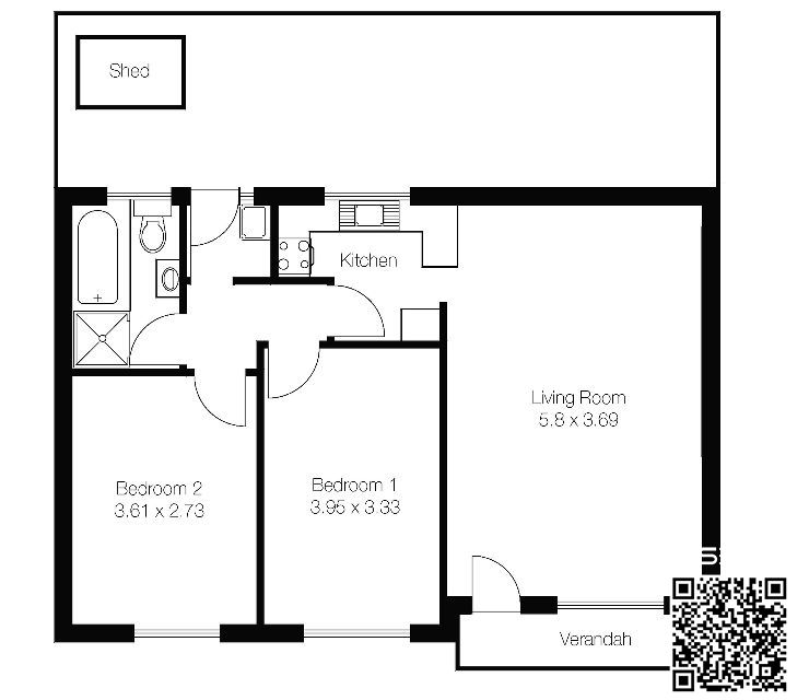
    南区WESTBOURNE PARK两房UNIT转租,11月底到12月初可入住,直接和中介签合同。WESTBOURNE PARK小学学区,目前租金260,新合同租金是否会涨暂不确定,最多应该不会超过270。主卧大,有一个十多平的小后院,门前20米左 ...

    回复

    Copyright @ 2022 AdelaideBBS.com. All rights reserved. User Agreement

    客服号

    公众号