| 微信 : Adelaidehelp 联系邮箱 : [email protected] 开启辅助访问
  • Paradise五卧轻奢华别墅 | 名校学区,精巧设计,极致景 ...

    浏览人气 : 4554
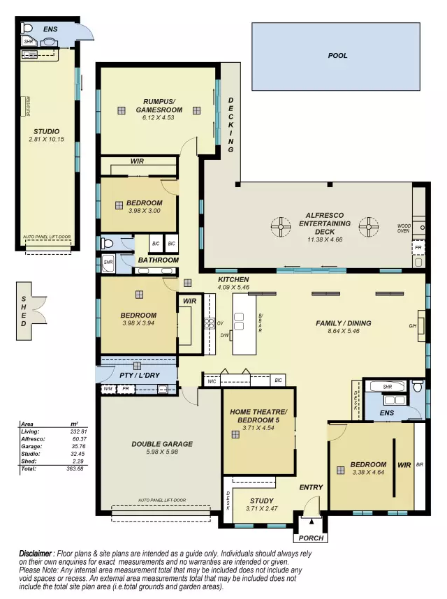
    17 Lincoln Road, Paradise 5075 Property Number : 1117093 价格 : 咨询中介 5 3 6

    任伟腾 Eric,林德旭 Clarence

    联系方式 :
    0411 204 891,0413 265 155

    看房时间

    看房时间1 :

    看房时间2 :

    地理位置
    打印 上一主题 下一主题

    Paradise五卧轻奢华别墅 | 名校学区,精巧设计,极致景色

    [复制链接]

    本内容为网友发布信息,仅代表原作者观点,不代表本平台立场。

    本帖最后由 Inspire房地产 于 20-1-2017 15:45 编辑

    精巧的设计与华美的内饰,定义了这里的轻奢华风格:既兼顾日常起居的便捷生活,又时刻彰显主人内敛而不凡的个性品位。
    宽大舒适的卧室给予每位家庭成员最大的尊重,无论从空间感还是舒适度,都能让所有人眼前一亮:地毯,吊扇,甚至步入式衣帽间,是所有五间卧室的标配。主卧专有浴室全瓷砖铺设,并特别安装双人盥洗台,典雅大方之余,也周到考虑日常细节,带给主人最舒适便捷的生活体验。而后院的开间里,浴室厨房俱全,无论是改造为私人健身房,或作为独立房屋招租,还是留给渴望体验独立生活的孩子,都是理想的选择。

    厨房,永远是家不可或缺的一部分。40mm大理石石台桌面,全不锈钢厨房设备,Fisher & Paykel洗碗机,巧妙设计的橱柜和储藏室,兼顾空间美感与实用性,让厨房的劳作也能成为愉悦的享受。

    每时每刻,这里总能带来生活的无穷乐趣。室内,客厅内温暖的燃气壁炉将冬日的漫漫长夜变为炉边畅谈,尽享温馨的美好时光;室外,后院泳池绝对是避暑纳凉的最佳去处。铺设硬木地板的露台上,全自动遮阳卷帘,电暖器,吊扇,大功率抽油烟机和大理石流理台一应俱全。是啜饮鸡尾酒,享受美好的静谧空间,还是呼朋引伴,来一场热闹的户外烧烤,在这里轻松把想法变成现实。
    最后,好房当然要与好位置匹配。这里地处名校East Marden小学学区,同时步行可至Paradise公交总站,距离Linear公园也咫尺之遥。优质教育资源,便利交通条件,极致周边景色完美融于一体。更多特色
    • 8.2kW太阳能电板
    • C-Bus智能照明控制系统,访客视频通话系统
    • 富士通中央空调,六区分区调控
    • 独立开间分体式空调
    • 全屋3米挑高,方正户型,内部均为2.4米大尺寸房门
    • 阻尼铰链抽屉
    • 客厅浮式地板
    • 隐藏式冰箱,储藏室及洗衣房设计
    • 双车位遥控车库,外加4个停车位



    屏幕快照 2017-01-09 下午5.14.35.png (289.5 KB, 下载次数: 152)

    屏幕快照 2017-01-09 下午5.14.35.png

    屏幕快照 2017-01-09 下午5.14.24.png (360.2 KB, 下载次数: 166)

    屏幕快照 2017-01-09 下午5.14.24.png

    屏幕快照 2017-01-09 下午5.14.19.png (357.34 KB, 下载次数: 160)

    屏幕快照 2017-01-09 下午5.14.19.png

    屏幕快照 2017-01-09 下午5.14.14.png (444.17 KB, 下载次数: 158)

    屏幕快照 2017-01-09 下午5.14.14.png

    屏幕快照 2017-01-09 下午5.14.08.png (394.28 KB, 下载次数: 156)

    屏幕快照 2017-01-09 下午5.14.08.png

    屏幕快照 2017-01-09 下午5.14.03.png (360.23 KB, 下载次数: 168)

    屏幕快照 2017-01-09 下午5.14.03.png

    屏幕快照 2017-01-09 下午5.13.58.png (338.72 KB, 下载次数: 171)

    屏幕快照 2017-01-09 下午5.13.58.png

    屏幕快照 2017-01-09 下午5.13.51.png (307.05 KB, 下载次数: 171)

    屏幕快照 2017-01-09 下午5.13.51.png

    屏幕快照 2017-01-09 下午5.13.46.png (310.58 KB, 下载次数: 170)

    屏幕快照 2017-01-09 下午5.13.46.png

    屏幕快照 2017-01-09 下午5.13.41.png (286.94 KB, 下载次数: 160)

    屏幕快照 2017-01-09 下午5.13.41.png

    屏幕快照 2017-01-09 下午5.13.36.png (270.78 KB, 下载次数: 176)

    屏幕快照 2017-01-09 下午5.13.36.png

    屏幕快照 2017-01-09 下午5.13.30.png (345.99 KB, 下载次数: 153)

    屏幕快照 2017-01-09 下午5.13.30.png

    屏幕快照 2017-01-09 下午5.13.25.png (268.55 KB, 下载次数: 178)

    屏幕快照 2017-01-09 下午5.13.25.png

    屏幕快照 2017-01-09 下午5.13.20.png (282.83 KB, 下载次数: 171)

    屏幕快照 2017-01-09 下午5.13.20.png

    屏幕快照 2017-01-09 下午5.13.15.png (273.38 KB, 下载次数: 156)

    屏幕快照 2017-01-09 下午5.13.15.png

    屏幕快照 2017-01-09 下午5.13.10.png (267.53 KB, 下载次数: 168)

    屏幕快照 2017-01-09 下午5.13.10.png

    屏幕快照 2017-01-09 下午5.13.03.png (269.38 KB, 下载次数: 154)

    屏幕快照 2017-01-09 下午5.13.03.png

    屏幕快照 2017-01-09 下午5.12.58.png (296.98 KB, 下载次数: 182)

    屏幕快照 2017-01-09 下午5.12.58.png

    屏幕快照 2017-01-09 下午5.12.54.png (224.57 KB, 下载次数: 169)

    屏幕快照 2017-01-09 下午5.12.54.png

    屏幕快照 2017-01-09 下午5.12.48.png (273.82 KB, 下载次数: 179)

    屏幕快照 2017-01-09 下午5.12.48.png

    屏幕快照 2017-01-09 下午5.12.43.png (523.72 KB, 下载次数: 155)

    屏幕快照 2017-01-09 下午5.12.43.png

    屏幕快照 2017-01-09 下午5.12.38.png (471.4 KB, 下载次数: 175)

    屏幕快照 2017-01-09 下午5.12.38.png

    BBS提醒: 请避免提前支付订金、押金等任何费用,请与对方当面沟通,确认资质并看清条款。谨防上当受骗。

    免责声明: 本网站所提供的信息,只供参考之用。本网站不保证信息的准确性、有效性、及时性和完整性。本网站及其雇员一概毋须以任何方式就任何信息传递或传送的失误、不准确或错误,对用户或任何其他人士负任何直接或间接责任。在法律允许的范围内,本网站在此声明,不承担用户或任何人士就使用或未能使用本网站所提供的信息或任何链接所引致的任何直接、间接、附带、从属、特殊、惩罚性或惩戒性的损害赔偿。

    收藏收藏 顶 踩
    回复

    使用道具 举报

    您需要登录后才可以回帖 登录 | 注册

    本版积分规则

    其他网友还看了 ...

    登录发布 生活求助 搜索

    Copyright @ 2022 AdelaideBBS.com. All rights reserved. User Agreement

    客服号

    公众号