| 微信 : Adelaidehelp 联系邮箱 : [email protected] 开启辅助访问
  • 【仅余2套】近市区双层联排别墅:明年入住新房,还有超 ...

    浏览人气 : 4763
    Property Number : 1117070 价格 :

    联系方式 :

    看房时间

    看房时间1 :

    看房时间2 :

    地理位置
    打印 上一主题 下一主题

    【仅余2套】近市区双层联排别墅:明年入住新房,还有超万元优惠补贴

    [复制链接]
    跳转到指定楼层
    楼主
    Inspire房地产 发表于 9-1-2017 15:36:23
    4763 0

    本内容为网友发布信息,仅代表原作者观点,不代表本平台立场。

    本帖最后由 Inspire房地产 于 8-6-2017 17:04 编辑

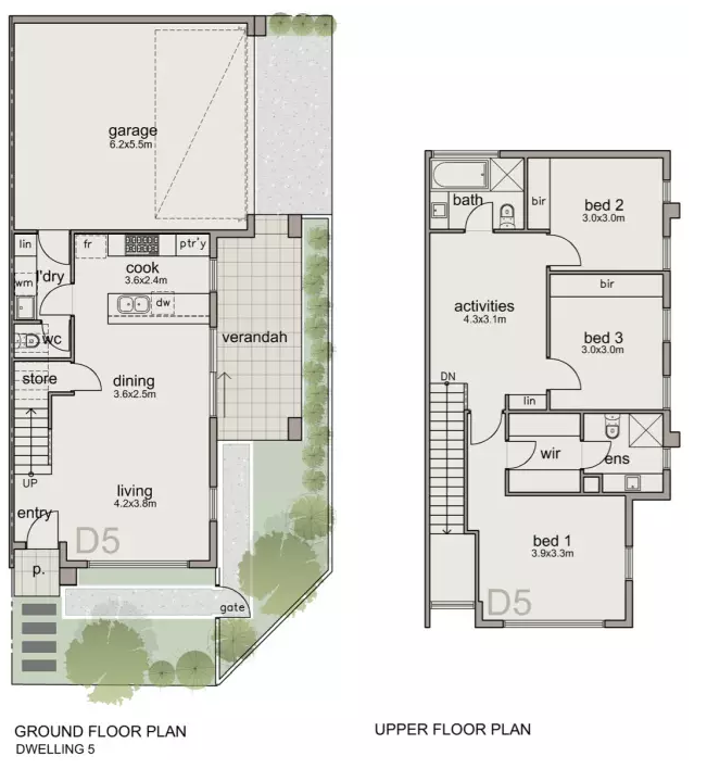
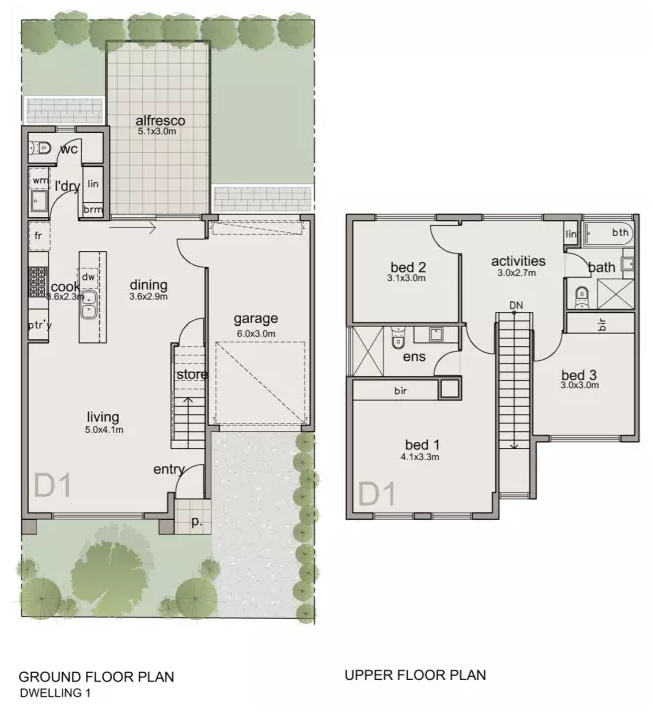
    户型:3室2浴2车位联排别墅地址:56-60 Boss Avenue, Marleston预计2017年底完工
    市场反响火爆,仅余2套!47.9万 - 52.9澳元!

    全新12套双层联排别墅,经典外观,方正格局。多样户型、面积供选择。价格梯度合理,价位亲民。即将开工建设,预计明年年底即可交付入住。

    位于阿德莱德历史最为悠久的社区之一Marleston,距CBD仅4公里,到阿德莱德著名海滩Glenelg约6公里,而驱车前往南澳最大的综合购物中心Westfield Marion只需15分钟。 周边环境优美,生活设施完备,购物中心、学校、银行、公共交通等一应俱全。既有都市生活的精彩便捷,又与城中喧哗保持距离,闹中取静。

    所有户型上下楼均为2.7米挑高,均设计有公共活动区域,为日常生活提供更多选择。厨房配备优质现代化设备,包括SMEG900mm燃气灶台、抽油烟机、600mm烤箱和洗碗机,并安装20mm石台桌面。富士通中央空调确保室内全天候宜人室温,带顶棚户外活动区最大化利用室外空间,提供户外娱乐场所。所有户型卧室均为于二楼。主卧卫浴套间,并安装入墙式衣帽间,两间次卧共享主浴。

    更多特色
    • 花园浇灌系统
    • LED天花灯
    • 室内2.4米加高房门
    • 遥控车库
    • 安全警报系统
    • 首付10%订金,完工即可交付,无任何附加费用
    • 符合条件的首次购房者可获最高15,000澳元政府补贴

    屏幕快照 2017-01-09 下午4.31.23.png (48.8 KB, 下载次数: 397)

    屏幕快照 2017-01-09 下午4.31.23.png

    屏幕快照 2017-01-09 下午4.31.11.png (105.23 KB, 下载次数: 380)

    屏幕快照 2017-01-09 下午4.31.11.png

    屏幕快照 2017-01-09 下午4.30.34.png (233.89 KB, 下载次数: 371)

    屏幕快照 2017-01-09 下午4.30.34.png

    屏幕快照 2017-01-09 下午4.30.26.png (224.24 KB, 下载次数: 397)

    屏幕快照 2017-01-09 下午4.30.26.png

    屏幕快照 2017-01-09 下午4.30.17.png (192.38 KB, 下载次数: 403)

    屏幕快照 2017-01-09 下午4.30.17.png

    屏幕快照 2017-01-09 下午4.30.11.png (157.8 KB, 下载次数: 384)

    屏幕快照 2017-01-09 下午4.30.11.png

    屏幕快照 2017-01-09 下午4.30.04.png (199.45 KB, 下载次数: 384)

    屏幕快照 2017-01-09 下午4.30.04.png

    屏幕快照 2017-01-09 下午4.29.59.png (112.88 KB, 下载次数: 444)

    屏幕快照 2017-01-09 下午4.29.59.png

    屏幕快照 2017-01-09 下午4.29.54.png (222.15 KB, 下载次数: 389)

    屏幕快照 2017-01-09 下午4.29.54.png

    屏幕快照 2017-01-09 下午4.29.49.png (221.3 KB, 下载次数: 419)

    屏幕快照 2017-01-09 下午4.29.49.png

    屏幕快照 2017-01-09 下午4.29.49.png (221.3 KB, 下载次数: 364)

    屏幕快照 2017-01-09 下午4.29.49.png

    BBS提醒: 请避免提前支付订金、押金等任何费用,请与对方当面沟通,确认资质并看清条款。谨防上当受骗。

    免责声明: 本网站所提供的信息,只供参考之用。本网站不保证信息的准确性、有效性、及时性和完整性。本网站及其雇员一概毋须以任何方式就任何信息传递或传送的失误、不准确或错误,对用户或任何其他人士负任何直接或间接责任。在法律允许的范围内,本网站在此声明,不承担用户或任何人士就使用或未能使用本网站所提供的信息或任何链接所引致的任何直接、间接、附带、从属、特殊、惩罚性或惩戒性的损害赔偿。

    收藏收藏 顶 踩
    回复

    使用道具 举报

    您需要登录后才可以回帖 登录 | 注册

    本版积分规则

    其他网友还看了 ...

    登录发布 生活求助 搜索

    Copyright @ 2022 AdelaideBBS.com. All rights reserved. User Agreement

    客服号

    公众号